Działka na sprzedaż bez pośredników
Darłowo  

Działka inwestycyjna Darłowo. Zdjęcie 1

Działka na sprzedaż bez pośredników Darłowo

795 000
159 zł/m²
5 000
Darłowo - lokalizacja przybliżona
Bezpośrednio od właściciela

Jeśli nie potrzebujesz pośrednika, zaoszczędzisz około 23 900 zł. Potrzebujesz wsparcia? Skorzystaj z pomocy agenta.

1. Przedmiot oferty
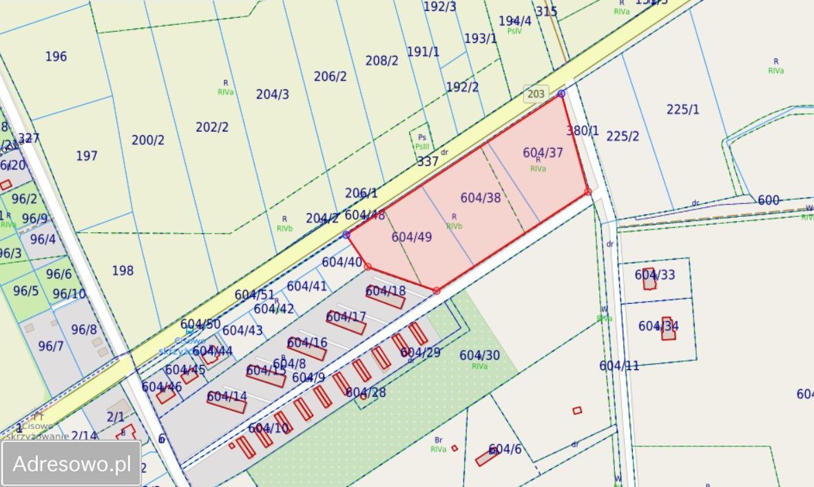
Przedmiotem oferty są niezabudowane działki gruntowe położone w gminie Darłowo, oznaczone numerami ewidencyjnymi 604/37, 604/38 oraz 604/49, o łącznej powierzchni 1,5553 ha. Nieruchomości stanowią własność prywatną i są przeznaczone do sprzedaży na cele inwestycyjne.

2. Lokalizacja i dostępność komunikacyjna
Działki położone są bezpośrednio przy drodze wojewódzkiej DW203, będącej główną trasą nadmorską łączącą Darłowo z Ustką. Lokalizacja zapewnia bardzo dobrą widoczność, łatwy zjazd oraz wysoki poziom ruchu lokalnego i sezonowego.

3. Otoczenie i potencjał inwestycyjny
Bezpośrednie otoczenie nieruchomości stanowi zabudowa mieszkaniowa oraz tereny usługowe. Bliskość centrum miasta Darłowo (ok. 2 km) oraz miejscowości nadmorskich generuje stały i sezonowy ruch klientów. Na analizowanym odcinku DW203 brak jest konkurencyjnych stacji paliw, co znacząco zwiększa atrakcyjność lokalizacji.

4. Przeznaczenie w MPZP
Dla przedmiotowych działek obowiązuje miejscowy plan zagospodarowania przestrzennego gminy Darłowo (uchwała Nr XXII/282/05 z dnia 30.06.2005 r.).
Teren oznaczony symbolem UU - lokalizacja usług, w tym usług uciążliwych, ze szczególnym uwzględnieniem stacji paliw. W części przyległej do drogi wojewódzkiej teren przewidziany jest pod komunikację.

5. Parametry działek
- Działka nr 604/37 - powierzchnia ok. 5 000 m²
- Działka nr 604/38 - powierzchnia ok. 5 378 m²
- Działka nr 604/49 - powierzchnia ok. 5 175 m²
- Łączna powierzchnia: 1,5553 ha
Cena w ogłoszeniu dotyczy działki 604/37.

6. Uzbrojenie terenu
Teren nie jest zabudowany. Media (energia elektryczna, woda, kanalizacja) dostępne są w zasięgu - możliwość uzyskania warunków przyłączeniowych zgodnie z obowiązującymi przepisami.

7. Informacje dodatkowe
Nieruchomość stanowi bardzo atrakcyjny grunt pod realizację inwestycji o charakterze komercyjnym, w szczególności stacji paliw wraz z funkcjami towarzyszącymi (sklep, myjnia, gastronomia). Zakładów produkcyjnych, kompleksów handlowo-usługowych, zakładów usługowych itd.
W celu uzyskania większej ilości informacji oraz umówienia spotkania proszę o kontakt.

  • Darłowo, powiat sławieński  
  • Na sprzedaż działka inwestycyjna o powierzchni 5 000 m²  
  • Ogrodzenie bez ogrodzenia
  • Media kanalizacja
  • Oferta bezpośrednio od właściciela dodana ponad tydzień temu
Ta nieruchomość może być Twoja od.. sprawdź
159000 zł (20%) Okres spłaty: 30 lat

Podobne działki na sprzedaż

18
Działka inwestycyjna Jezierzany

890 000

1599

Sprzedam inwestycję-działkę z nowymi domkami letniskowymi, wybudowanymi w 2021 roku.  Prawomocne pozwolenie na budowę wydane jest na 9 domków, w chwili obecnej wybudowane  i ukończone są trzy, które są w pełni wyposażone, przygotowane do sezonu letniego. Domki drewniane o powierzchni 40,15 m2,...

Zobacz ogłoszenie
16
Działka inwestycyjna Rusinowo, ul. Misia Uszatka

890 000

1040

Na sprzedaż ośrodek Linowe Domki z trzema domkami letniskowymi działający od 2019 roku. 700m od morza. Działka o powierzchni 1040 m2 Media: - prąd -woda i kanalizacja gminna - światłowód Ośrodek posiada swoją stronę Cena do negocjacji Możliwość wystawienia faktury VAT Domki są w stanie idealnym w...

Zobacz ogłoszenie
3
Działka inwestycyjna Bobrowice

1 000 000

8200

Sprzedam działkę inwestycyjną nr 39 76-100 Bobrowice oznaczenie 39up W miejscowym planie hale magazyny do 12 metrów lub domy z płaskim dachem. Duża powierzchnia zabudowy. Świetna lokalizacja na samym zjeżdzie Bobrowice z budowanej s6 Gdańsk-Szczecin. Możliwość sprzedaży w prywatnych ratach lub p...

Zobacz ogłoszenie
7
Działka inwestycyjna Ostrowiec

700 000

2,29 ha

Sprzedam działkę nr.173 w Ostrowcu, gmina Malechowo, Powiat Sławno, Działka częściowo utwardzona, zjazd z głównej drogi od razu na działkę, działka ogrodzona, posiada wszystkie media, prąd, woda, kanalizacja. Wszystkie media doprowadzone do działki. Na działce stały wcześniej trzy budynki produkcyj...

Zobacz ogłoszenie
6
Działka inwestycyjna Jezierzany, ul. Klonowa

900 000

1,03 ha

Obiektem sprzedaży jest działka o powierzchni 10300m2,położona w Jezierzanach ,przy ulicy Klonowej(numer działki 110/2) Działka posiada doskonała lokalizacje(ok.1,22km do pomostu na jeziorze Wicko,oraz do najbliższego zejścia plażowego w Jarosławcu ok. 2km) -w ulicy Klonowej znajduje sieć kanalizac...

Zobacz ogłoszenie
6
Działka inwestycyjna Ostrowiec

500 000

1 ha

Sprzedam część działki nr.173 w Ostrowcu, gmina Malechowo, Powiat Sławno, Działka częściowo utwardzona, zjazd z głównej drogi od razu na działkę, działka ogrodzona, posiada wszystkie media, prąd, woda, kanalizacja. Wszystkie media doprowadzone do działki. Na działce stały wcześniej trzy budynki pro...

Zobacz ogłoszenie