Działka na sprzedaż bez pośredników
Brzesko  

Działka inwestycyjna Brzesko. Zdjęcie 1

Działka na sprzedaż bez pośredników Brzesko

700 000
227 zł/m²
3 088
Brzesko - lokalizacja przybliżona
Bezpośrednio od właściciela

Jeśli nie potrzebujesz pośrednika, zaoszczędzisz około 21 000 zł. Potrzebujesz wsparcia? Skorzystaj z pomocy agenta.

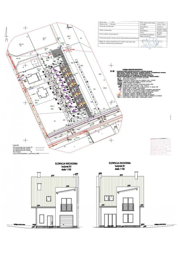
Oferta dotyczy sprzedaży trzech działek inwestycyjnych o łącznej powierzchni 3088 m2 na terenie miasta Brzesko.

Lokalizacja:
- wydane prawomocne pozwolenie na budowę 9 domów w zabudowie szeregowej (osiedle zamknięte)
- dostępne wszystkie media, włącznie z miejską kanalizacją
- prawomocne pozwolenie na budowę odcinka sieci kanalizacyjnej
- wjazd na teren projektowanej inwestycji z asfaltowej ulicy Sczepanowskiej
- teren inwestycji oczyszczony z drzew i krzewów, w pełni gotowy do szybkiego rozpoczecia budowy
- 3km of węzła autostradowego kier. Kraków/Rzeszów
-1km od ścisłego centrum Brzeska
-500m od terenów leśnych służących rekreacji
- w sąsiedztwie nowa zabudowa mieszkaniowa jednorodzinna
- sprawna komunikacja z Krakowem – PKP, Bus –50 minut do Kraków Główny, samochód 30 minut do granicy miasta

Krótka charakterystyka zaprojektowanych budynków:
- powierzchnia użytkowa: 123m2
- powierzchnia całkowita: 163,5m2
- powierzchnia zabudowy: 82m2
- ilość kondygnacji: 2
- do każdego budynku przynależy ogródek 7x7m, segmenty skrajne z większym terenem
- w pełni zoptymalizowany użytkowo oraz kosztowo projekt
- garaż jednostanowiskowy w bryle budynku, dodatkowe miejsce parkingowe przy budynku
- zaprojektowane wydzielenie drogi wewnętrznej oraz dodatkowych miejsc parkingowych

  • Brzesko, powiat brzeski  
  • Na sprzedaż działka inwestycyjna o powierzchni 3 088 m²  
  • Wymiary Szerokość: 3088 m
  • Dojazd asfalt
  • Media kanalizacja
  • Oferta bezpośrednio od właściciela dodana ponad miesiąc temu i zaktualizowana ponad tydzień temu
Ta nieruchomość może być Twoja od.. sprawdź
140000 zł (20%) Okres spłaty: 30 lat

Podobne działki na sprzedaż

4
Działka inwestycyjna Okocim, ul. Cesarski Gościniec

450 000

1 ha

Więcej informacji udzielę telefonicznie.

Zobacz ogłoszenie
8
Działka inwestycyjna Dębno

600 000

5500

Na sprzedaż działka usługowa o powierzchni 55 arów, obecnie podzielona na 3 działki po około 18 arów każda (dz. nr: 152/4, 152/5, 152/6). Możliwość kupna całości lub wybranych działek. - Dojazd bezpośrednio z drogi gminnej bez ograniczeń tonażowych. - Skręt z drogi krajowej obustronny. - Na działc...

Zobacz ogłoszenie
2
Działka inwestycyjna Brzesko, ul. Szczepanowska

660 000

5453

| *zdjęcia należą do właściciela Działka w terenie objętym MPZP Dzielnica Przemysłowa - Brzesko. Tereny obiektów produkcyjnych składów i magazynów oraz zabudowy usługowej. Parametry działki: - wskaźnik pow. zabudowy na działce budowlanej nie większy niż 0,4; - wskaźnik intensywności z...

Zobacz ogłoszenie