Działka na sprzedaż bez pośredników
Borowy Młyn  

NOWA OFERTA
Działka inna Borowy Młyn. Zdjęcie 1

Działka na sprzedaż bez pośredników Borowy Młyn

8 880
5 zł/m²
1 776
Borowy Młyn - lokalizacja przybliżona
Bezpośrednio od właściciela

Jeśli nie potrzebujesz pośrednika, zaoszczędzisz około 300 zł. Potrzebujesz wsparcia? Skorzystaj z pomocy agenta.

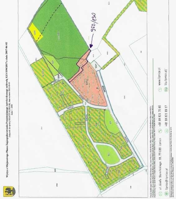
Sprzedam działkę położoną w województwie pomorskim, gmina Bytów, obręb Borowy Młyn. Powierzchnia działki wynosi 1776 metrów kwadratowych. Numer działki 220105_2.0001.962/130.
Jest to działka o charakterze leśno rolnym. W ewidencji gruntów oznaczona jako: RVI, Br-RVI, Br-LSV.
Działka jest zabudowana budowlami:
1) studnia głębinowa zbudowana przez mieszkańców osiedla Ostoja Bukowo;
2) instalacja wodna i elektryczna wraz z obiektem hydroforowo-pompowym do wody zaopatrującej osiedle Ostoja Bukowo.
Kupujący będzie zobowiązany do ustanowienia na działce 962/130, na rzecz osób lub podmiotu wskazanego przez mieszkańców lub zarząd osiedla Ostoja Bukowo, służebności polegającej na prawie do:
- korzystania ze studni głębinowej i instalacji hydroforowo-pompowej;
- poboru wody głębinowej w zakresie niezbędnym do zaspokojenia potrzeb osiedla;
- dostępu do hydroforni i studni w celu ich eksploatacji, kontroli, konserwacji, naprawy, modernizacji oraz usuwania awarii;
- rozbudowy, przebudowy lub zmiany przeznaczenia studni i hydroforni;
- wejścia i wjazdu na teren działki w zakresie niezbędnym do wykonywania powyższych uprawnień.
Nowy właściciel działki 962/130 nie będzie zobowiązany do zapewnienia dostaw wody ani utrzymania studni w stanie umożliwiającym jej użytkowanie przez osiedle Ostoja Bukowo.
Uwaga: sprzedaż działki 962/130 objęta jest prawem pierwokupu Lasów Państwowych.

  • Borowy Młyn, gmina Lipnica, powiat bytowski  
  • Na sprzedaż działka inna o powierzchni 1 776 m²  
  • Media woda
  • Oferta bezpośrednio od właściciela dodana dodana dzisiaj