Działka na sprzedaż bez pośredników
ul. Barcikowice Zielona Góra Barcikowice

Działka budowlana Zielona Góra Barcikowice, ul. Barcikowice. Zdjęcie 1

Działka na sprzedaż bez pośredników Zielona Góra Barcikowice ul. Barcikowice

150 000
375 zł/m²
400
Zielona Góra Barcikowice, Barcikowice - lokalizacja przybliżona
Bezpośrednio od właściciela

Jeśli nie potrzebujesz pośrednika, zaoszczędzisz około 4 500 zł. Potrzebujesz wsparcia? Skorzystaj z pomocy agenta.

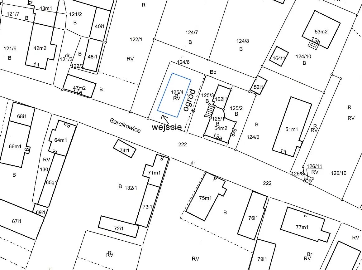
Oferuję na sprzedaż działkę numer 125/4 o powierzchni 400mkw w miejscowości Zielona Góra-Barcikowice.

Jest to działka budowlana z wydanymi warunkami zabudowy. Działka ma regularny kształt zbliżony do prostokąta o wymiarach 25 x 16m. Działka od trzech stron otoczona drogą. W bezpośrednim otoczeniu działki jest tylko jedna zabudowana działka.

Dojazd do nieruchomości drogą asfaltową. Lokalizacja jest dobrze skomunikowana, w promieniu 2km od działki jest sklep Dino, Żabka, paczkomat, przystanek autobusowy. Odległość od centrum Zielonej Góry to jedynie ok 10km.

W niedalekim otoczeniu znajduje się dużo terenów zielonych, lasy oraz Park Książecy w Zatoniu.

Dla działki wydano warunki zabudowy - szczegóły widoczne w załącznikach. Mimo niewielkich rozmiarów działka jest idealna pod inwestycję domu jednorodzinnego.

Media (prąd, woda) - w trakcie podłączenia.
Proszę dzwonić [numer]
Jest to oferta prywatna - z góry dziękuje za kontakt pośrednikom oraz agencjom.

  • ul. Barcikowice, Zielona Góra Barcikowice  
  • Na sprzedaż działka budowlana o powierzchni 400 m²  
  • Numer ewidencyjny działki 124/4
  • Dojazd asfalt
  • Ogrodzenie metalowe
  • Media woda nieprzyłączona, kanalizacja, prąd
  • Oferta bezpośrednio od właściciela dodana ponad miesiąc temu i zaktualizowana ponad tydzień temu
Ta nieruchomość może być Twoja od.. sprawdź
30000 zł (20%) Okres spłaty: 30 lat

Podobne działki na sprzedaż

2
Działka budowlana Zielona Góra Przylep, ul. Potokowa

150 000

917

Na sprzedaż działki budowlane położone w miejscowości Zielona Góra ul. Przylep-Potokowa. Nieruchomości przeznaczone pod zabudowę jednorodzinną lub jednorodzinną dwulokalową - idealna zarówno dla inwestora, jak i osób prywatnych planujących budowę domu. Na sprzedaż dostępne są 2 ostatnie działki: - D...

Zobacz ogłoszenie
1
Działka budowlana Zielona Góra Drzonków, ul. Drzonków-Olimpijska

150 000

600

Działka budowlana w Drzonkowie- ul. Olimpijska 38 (bardzo dobra lokalizacja), NR KW ZG1E/ 545 - pokaż numer telefonu - 7/2- nr działki 178/2- zabudowana nieruchomością.

Zobacz ogłoszenie
1
Działka budowlana Zielona Góra Ochla, ul. Ochla-Kwiatowa

zapytaj

1000

Dzialki pod budowe jednorodzinna o pow.ok.1000 m kw.kazda.Lokalizacja;przy ul.Zielonogorskiej w Zielonej Gorze- Ochli,blisko Skansenu.Okolica spokojna,wszedzie blisko:centrum miasta 5 min.samochodem,autobus blisko co 0,5 godz.blisko,zakupy na miejscu itd.Media:prad ,woda,gaz,kanalizacja-w drodze.Sz...

Zobacz ogłoszenie
1
Działka budowlana Zielona Góra Krępa, ul. Odrzańska

150 000

879

Na sprzedaż działka budowlana o powierzchni 879 m² w Krępie, Zielona Góra. Działka ma utwardzony dojazd oraz dostęp do energii elektrycznej. Jest to idealne miejsce na budowę wymarzonego domu. Wydane warunki zabudowy, bezterminowo.

Zobacz ogłoszenie