Działka na sprzedaż bez pośredników
Szramowo  

Działka budowlana Szramowo. Zdjęcie 1

Działka na sprzedaż bez pośredników Szramowo

800 000
73 zł/m²
10 900
Szramowo - lokalizacja przybliżona
Bezpośrednio od właściciela

Jeśli nie potrzebujesz pośrednika, zaoszczędzisz około 24 000 zł. Potrzebujesz wsparcia? Skorzystaj z pomocy agenta.

Na sprzedaż pięknie usytuowana działka wśród lasów. Odległość od jeziora ok 300m.

Miejsce może być znane z serii książek Katarzyny Puzyńskiej jako wieś Lipowo. Obok działki znajduję się "Gospodarstwo Sędziego Jaworskiego", znanego z serii książek.

Miejsce dla osób szukających spokoju i ciszy mimo bliskiej odległości od aglomeracji. Odległość od najbliższego miasteczka Pokrzydowa to 1,9 km. Odległość od Brodnicy 15 km, od Nowego Miasta Lubawskiego 22 km, Torunia 80 km, Olsztyna 100 km, Warszawy 200 km.

Do działki prowadzi droga asfaltowa (nowo zrobiona).

Parametry techniczne:
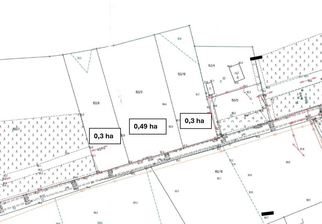
nr działki 153/9 - powierzchnia 0,49 ha
nr działki 153/10 - powierzchnia 0,3 ha
nr działki 153/8 - powierzchnia 0,3 ha

Wszystkie działki posiadają warunki zabudowy.

Jest to także świetne miejsce inwestycyjne dla osób pragnących ulokować kapitał lub zbudować ośrodek wypoczynkowy.

Po więcej szczegółów zapraszam do rozmowy

  • Szramowo, gmina Zbiczno, powiat brodnicki  
  • Na sprzedaż działka budowlana o powierzchni 1,09 ha (10 900 m²)  
  • Dojazd asfalt
  • Oferta bezpośrednio od właściciela dodana ponad miesiąc temu
Ta nieruchomość może być Twoja od.. sprawdź
160000 zł (20%) Okres spłaty: 30 lat

Podobne działki na sprzedaż

1
Działka budowlana Żmijewko, ul. Kwiatowa

zapytaj

8000

Działki w granicach od 900m² do 1100m², wjazd z drogi asfaltowej ul. Kwiatowej . Działki znajdują się przy ul. Szosa Brodnicka. W działkach jest woda tylko wystarczy się w nią wpiąć . Cena to 95 zł /m²

Zobacz ogłoszenie
6
Działka budowlana Wądzyn

699 000

1,24 ha

Na sprzedaż nieruchomość składająca się z działki o łącznej powierzchni 1,24 HA wraz z budynkiem mieszkalnym - do remontu - o pow. ok 120 m2 oraz budynkiem gospodarczy o pow. ok 77 m2. Działka ma ukształtowanie płaskie, o nieregularnym, wydłużonym kształcie, w jej obrębie znajduje się las - ok 30% p...

Zobacz ogłoszenie
8
Działka budowlana Brodnica, ul. Podgórna

550 000

1022

BRODNICA DZIAKA INWESTYCYJNA  Z POTENCJEŁEM. MACHDOM INVEST NIERUCHOMOŚCI  [numer]  Nieruchomość idealna pod budowę budynku mieszkalnego z lokalami usługowymi. Prezentujemy na sprzedaż działkę budowlaną opw.1022 m2 w Brodnicy przy ul. Podgórnej. Nieruchomość przeznaczona w miejscowym planie zagospod...

Zobacz ogłoszenie
6
Działka budowlana Karbowo, ul. Wczasowa

513 000

2054

Sprzedam atrakcyjną działkę budowlaną uzbrojoną nr 57/12 o powierzchni 2.054 m² (39/52) w Karbowie, wraz z udziałem w drodze wewnętrznej nr 57/13 o powierzchni 1472 m² i przylegającą do drogi powiatowej nr 1805 C. Działka bardzo malownicza położona w sąsiedztwie lasów i jeziora Niskie Brodno. Gm...

Zobacz ogłoszenie