Zamość
ul. Ogrodnicza
działka budowlana na sprzedaż Bez pośrednika

Działka budowlana Zamość, ul. Ogrodnicza
Cena
299 670
Powierzchnia
1427 m²
Cena za m²
210
Zamość · 299 670 zł

Ogłoszenie właściciela - bez pośredników

Działka budowlana Zamość, ul. Ogrodnicza. Zdjęcie 1
NOWA OFERTA dodana 4 godziny temu
Działka budowlana Zamość, ul. Ogrodnicza. Zdjęcie 1

Bez pośrednika. Oszczędzasz 9 000 zł na prowizji pośrednika!

Sprzedam działkę budowlaną: ul. Ogrodnicza Skokówka gm. Zamość, 10 minut do centrum .
- Działka płaska, nasłoneczniona,
- Media: biegną w drodze,
- Dojazd: droga gminna asfaltowa,
- Położenie: ulica „ślepa” o małym natężeniu ruchu z dala od miejskiego zgiełku,
- Okolica: wokół zabudowa jednorodzinna,
- Idealne dla osób aktywnych zawodowo, ceniących bliskość do centrum Zamościa jak i zielonego Roztocza.

  • ul. Ogrodnicza, Zamość
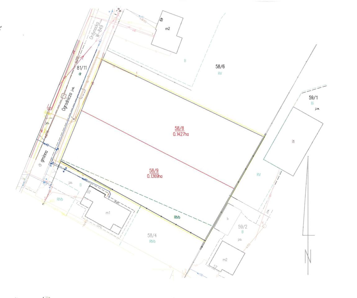
  • Na sprzedaż działka budowlana o powierzchni 1427 m².
  • Numer ewidencyjny działki: 58/8
  • Wymiary działki: Kształt zbliżony do trapezu: 67,60 x 22,53 x 64,91 x 20,63 [m]
  • Dojazd: asfalt, ogrodzenie: bez ogrodzenia
  • Media: woda, kanalizacja, prąd, gaz
  • Oferta dodana bezpośrednio przez właściciela wczoraj
Wróć
Największa baza ogłoszeń bez pośredników
Zarejestruj się, aby przejść dalej
lub

Kontynuując akceptujesz
Regulamin i Politykę prywatności

Masz już konto na adresowo.pl?
Zaloguj się

Mamy dla Ciebie kredyt hipoteczny z niską ratą! Chcesz poznać szczegóły?

Kontakt z VeloBank:
- ofertę, wniosek i decyzję o przyznaniu kredytu w procesie online,
- wsparcie eksperta hipotecznego na każdym kroku,
- kredyt do 90% wartości nieruchomości.





Wyrażam zgodę na przetwarzanie moich danych osobowych zawartych w formularzu na stronie adresowo.pl przez VeloBank S.A. z siedzibą w Warszawie przy Rondo Ignacego Daszyńskiego 2C (Bank), a tym samym na ich przetwarzanie, w tym profilowanie, przez Bank w celu marketingu produktów i usług Banku za pośrednictwem rozmowy telefonicznej i sms. Zgoda może być w każdej chwili wycofana. Cofnięcie zgody nie ma wpływu na zgodność z prawem przetwarzania danych przed jej wycofaniem.