Działka na sprzedaż
ul. Słoneczna Żabia Wola

Działka budowlana Żabia Wola, ul. Słoneczna. Zdjęcie 1
Działka budowlana Żabia Wola, ul. Słoneczna. Zdjęcie 2
Działka budowlana Żabia Wola, ul. Słoneczna. Zdjęcie 3
Działka budowlana Żabia Wola, ul. Słoneczna. Zdjęcie 4
Działka budowlana Żabia Wola, ul. Słoneczna. Zdjęcie 5

Działka na sprzedaż Żabia Wola ul. Słoneczna

399 000
125 zł/m²
3 180
Żabia Wola, Słoneczna - lokalizacja przybliżona

Właściciel powierzył sprzedaż nieruchomości pośrednikowi. Możesz zadzwonić lub napisać do agenta za darmo.

Na sprzedaż: działka budowlano-usługowa w Gminie Żabia Wola

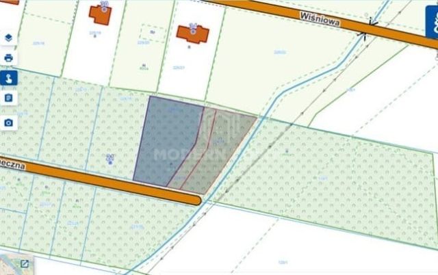
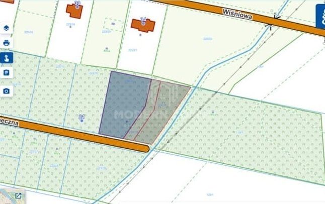
Oferujemy na sprzedaż nieruchomość gruntową o łącznej powierzchni 3180 m², składającą się z trzech odrębnych działek: nr 224/17, 224/18 i 224/19. Położona przy ul. Słonecznej w Gminie Żabia Wola, ta nieruchomość doskonale łączy możliwości inwestycyjne z atutami spokojnej, zielonej okolicy.

Szczegóły dotyczące działek
Działka nr 224/17
- Powierzchnia: ok. 1685 m²
- Przeznaczenie: MU5 (zabudowa mieszkaniowa jednorodzinna i usługi)
- Pokrycie terenu: 55% budowlane, 45% ekologicznie czynne

Działka nr 224/18
- Powierzchnia: ok. 125 m² w RE1 (ciągi ekologiczne),
- oraz ok. 332 m² w MU5 (zabudowa mieszkaniowa jednorodzinna i usługi)
- Pokrycie terenu: 27,4% w RE1, 72,6% w MU5

Działka nr 224/19
- Powierzchnia: ok. 953 m² w RE1 (ciągi ekologiczne),
- oraz ok. 77 m² w MU5 (zabudowa mieszkaniowa jednorodzinna i usługi)
- Pokrycie terenu: 92,6% w RE1, 7,4% w MU5

Atuty nieruchomości
Komunikacja: szybki i wygodny dojazd do Warszawy trasą S8
Lokalizacja: spokojne, zielone otoczenie w malowniczej gminie Żabia Wola
Infrastruktura: w pobliżu sklepy, szkoły, punkty usługowe

Możliwości zabudowy
Działka umożliwia:
Budowę mieszkaniową jednorodzinną Prowadzenie działalności usługowej

Media i dostępność
Dostępne przyłącze elektryczne.

Cena: 399.000 zł

Nieruchomość oferuje wyjątkowe możliwości inwestycyjne, łącząc różnorodne przeznaczenie gruntów z atrakcyjną lokalizacją.
Zapraszam do kontaktu i obejrzenia na miejscu!


For sale: construction and service plot in the Żabia Wola Commune

We offer for sale a land property with a total area of 3180 m² , consisting of three separate plots: no. 224/17, 224/18 and 224/19 . Located at ul. Słoneczna in the Żabia Wola Commune, this property perfectly combines investment opportunities with the advantages of a quiet, green area.

Details of the plots
Plot no. 224/17
- Area: approx. 1685 m²
- Intended use: MU5 (single-family housing and services)
- Terrain coverage: 55% construction, 45% ecologically active

Plot no. 224/18
- Area: approx. 125 m² in RE1 (ecological routes),
- and approx. 332 m² in MU5 (single-family housing and services)
- Terrain coverage: 27.4% in RE1, 72.6% in MU5

Plot no. 224/19
- Area: approx. 953 m² in RE1 (ecological routes),
- and approx. 77 m² in MU5 (single-family housing and services)
- Terrain coverage: 92.6% in RE1, 7.4% in MU5

Advantages of real estate
Communication : quick and convenient access to Warsaw via the S8 route
Location : quiet, green surroundings in the picturesque commune of Żabia Wola
Infrastructure : shops, schools, service points nearby

Building options
The plot allows for:
Construction of single-family housing Conducting service activities

Media and accessibility
Electrical connection available.

Price: PLN 399,000

The property offers unique investment opportunities, combining diverse land uses with an attractive location.
Feel free to contact me and view it on site!

...

  • ul. Słoneczna, Żabia Wola, powiat grodziski  
  • Na sprzedaż działka budowlana o powierzchni 3 180 m²  
  • Ogrodzenie bez ogrodzenia
  • Ogłoszenie biura nieruchomości  
  • Oferta dodana ponad miesiąc temu
Ta nieruchomość może być Twoja od.. sprawdź
80000 zł (20%) Okres spłaty: 30 lat

Podobne działki na sprzedaż

9
Działka budowlana Żabia Wola

250 000

1067

BEZ PROWIZJI ! Proponuję atrakcyjną działkę budowlaną o powierzchni 1067 m², położoną w spokojnej okolicy w miejscowości Żabia Wola (powiat grodziski), w sąsiedztwie nowych domów jednorodzinnych i terenów zielonych. Stan prawny nieruchomości: pełna własność. · Nr działki: 82/65 · ...

Zobacz ogłoszenie
7
Działka budowlana Petrykozy

440 000

6714

Na sprzedaż działka o nr ewidencyjnym 66/1 o powierzchni 6714 m2 we wsi Petrykozy koło Pabianic, woj łódzkie. Działka w kształcie prostokąta o szerokości ok, 21m. Na działce w jej południowej części (od ulicy) znajduje się budynek mieszkalny w stanie do rozbiórki. Budynek o powierzchni 118 m2. Dział...

Zobacz ogłoszenie
1
Działka budowlana Żabia Wola, ul. Gajowego

300 000

2000

Działka wg planu zagospodarowania przeznaczona pod zabudowę mieszkaniową . Media przy drodze Głównej w odległości 100m w planie jest wybudowanie drogi gminnej w miejsce prywatnych Nr działki 253/7 ul Gajowego

Zobacz ogłoszenie
8
Działka budowlana Żabia Wola, ul. Szybowcowa

330 000

1500

Sprzedam działkę budowlaną, położoną w powiecie grodziskim, w miejscowości Żabia Wola, przy ul. Szybowcowej. W planie zagospodarowania widnieje jako działka budowlana. Udział w drodze. W jednej z działek: kanalizacja i woda w działce. W drugiej działce: woda i kanalizacja w drodze. W przypadku o...

Zobacz ogłoszenie
1
Działka budowlana Żabia Wola, ul. Szybowcowa

340 000

1500

Sprzedam działkę budowlaną położoną w powiecie grodziskim, w miejscowości Żabia Wola, przy ul. Szybowcowej. - W planie zagospodarowania widnieje jako działka budowlana. - Udział w drodze. - W drodze gaz, w działce prąd i woda. - W sąsiedztwie działki domki jednorodzinne i pola. Dwie identyczne dzi...

Zobacz ogłoszenie
1
Działka budowlana Słubica Dobra, ul. Słoneczna

500 000

1,37 ha

Działka prostokątna, nie zadrzewiona. 40 km od Warszawy,1,5 km od trasy katowickiej. 12 200 m.kw - siedlisko (250 000,00 zł), 1 500 m.kw - budowlana (250 000,00 zł). Możliwość kupna osobno.

Zobacz ogłoszenie