Działka na sprzedaż bez pośredników
ul. Róży Wiatrów Szczecin Dąbie

Działka budowlana Szczecin Dąbie, ul. Róży Wiatrów. Zdjęcie 1

Działka na sprzedaż bez pośredników Szczecin Dąbie ul. Róży Wiatrów

450 000
808 zł/m²
557
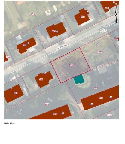
Szczecin Dąbie, Róży Wiatrów - lokalizacja przybliżona
Bezpośrednio od właściciela

Jeśli nie potrzebujesz pośrednika, zaoszczędzisz około 13 500 zł. Potrzebujesz wsparcia? Skorzystaj z pomocy agenta.

NA SPRZEDAŻ: Działka budowlana - Szczecin Dąbie, ul. Róży Wiatrów

Na sprzedaż atrakcyjna działka budowlana o powierzchni 557 m², położona w spokojnej i dobrze skomunikowanej części Szczecina - Dąbie, przy ul. Róży Wiatrów.

• Wymiary działki: ok. 20 m x 27 m.
• Status prawny: Pełna własność, wydane warunki zabudowy.
• Media: Wszystkie media (prąd, woda, kanalizacja, gaz) znajdują się w drodze bezpośrednio przylegającej do działki.

Lokalizacja:
• W pobliżu szkoły, sklepy, przychodnia.
• Bardzo dobra komunikacja miejska.
• Zaledwie 800 m w linii prostej do Jeziora Dąbie - idealne miejsce dla miłośników natury i rekreacji.

Działka znajduje się w rozwijającej się, a jednocześnie spokojnej okolicy, idealna pod budowę domu jednorodzinnego.

CENA: 450 tys. do negocjacji.

  • ul. Róży Wiatrów, Szczecin Dąbie  
  • Na sprzedaż działka budowlana o powierzchni 557 m²  
  • Wymiary Wymiary działki: 20 m x 27 m
  • Oferta bezpośrednio od właściciela dodana ponad miesiąc temu i zaktualizowana ponad tydzień temu
Ta nieruchomość może być Twoja od.. sprawdź
90000 zł (20%) Okres spłaty: 30 lat

Podobne działki na sprzedaż

5
Działka budowlana Szczecin Kijewko

550 000

2000

Sprzedam działkę usługowo-budowlana w dzielnicy Kijewko, nieopodal osiedla Bukowego. Działka w kształcie trapezu o wymiarach 35-20 m na 80-60 m. o pow. 2000m2, położona na skraju Puszczy Bukowej. Częściowo ogrodzona. Na terenie działki wykopana studnia, krzewy, drzewa. Jest skrzynka z prądem. Możliw...

Zobacz ogłoszenie
12
Działka budowlana Szczecin Płonia, ul. Klonowa

410 000

800

Na sprzedaż działka budowlana – 800 m² | Szczecin – Płonia, ul. Klonowa Na sprzedaż atrakcyjna działka budowlana o powierzchni 800 m², położona na Prawobrzeżu, w spokojnej i zielonej dzielnicy Płonia. Nieruchomość objęta MPZP po zabudowę jednorodzinną wolnostojącą. Teren wyrównany, niepodmokły, og...

Zobacz ogłoszenie
5
Działka budowlana Szczecin Płonia, ul. Klonowa

450 000

800

Działka budowlana 800 m2 położona na Prawobrzeżu Szczecina w dzielnicy Płoni. W planie zagospodarowania przestrzennego działka przeznaczona jest pod zabudowę jednorodzinną wolnostojącą z niezbędną infrastrukturą. Działka pierwszoplanowa w kształcie prostokąta, teren płaski niepodmokły. Media w dro...

Zobacz ogłoszenie
8
Działka budowlana Szczecin, ul. Alabastrowa

420 000

1200

Sprzedam pięknie położoną, dużą działkę budowlaną z uzbrojeniem w drodze (prąd, woda, gaz). Działka położona 15 minut od ścisłego centrum w Szczecinie, przy ul. Alabastrowej, w kompleksie działek domków jednorodzinnych. Dookoła cisza, przyroda, natura - mnóstwo terenów do wypoczynku aktywnego: space...

Zobacz ogłoszenie
3
Działka budowlana Szczecin Dąbie

568 000

1940

Na sprzedaż działka budowlana, położona w spokojnej części Szczecina (Dąbie), w bezpośrednim sąsiedztwie terenów zielonych. Miejsce dla osób, które cenią ciszę, przestrzeń i naturalne otoczenie. Działka daje poczucie prywatności i pozwala stworzyć dom z widokiem na zieleń (tak jak przedstawia wizual...

Zobacz ogłoszenie
8
Działka budowlana Szczecin Warszewo, ul. Na Stoku

580 000

1836

DUŻA DZIAŁKA BUDOWLANA 1840 m² Warszewo - Szczecin | ul. Na Stoku Na sprzedaż prawo dzierżawy działki budowlanej o powierzchni 1840 m², położonej w jednej z najbardziej atrakcyjnych części miasta - Warszewo, Szczecin, ul. Na Stoku. To nie jest działka ogrodnicza ani rolna. Grunt posiada przeznacze...

Zobacz ogłoszenie