Działka na sprzedaż bez pośredników
ul. Wodna Rokocin

NOWA OFERTA
Działka budowlana Rokocin, ul. Wodna. Zdjęcie 1

Działka na sprzedaż bez pośredników Rokocin ul. Wodna

176 000
177 zł/m²
997
Rokocin, Wodna - lokalizacja przybliżona
Bezpośrednio od właściciela

Jeśli nie potrzebujesz pośrednika, zaoszczędzisz około 5 300 zł. Potrzebujesz wsparcia? Skorzystaj z pomocy agenta.

Sprzedam działkę budowlaną w Rokocinie, ul. Wodna.
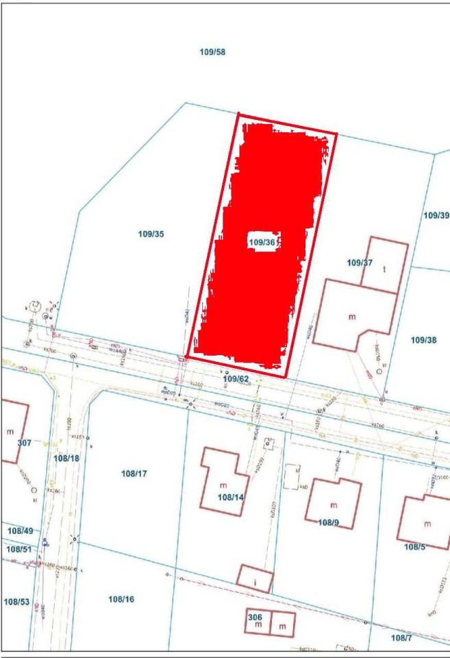
Działka nr 109/36, obr. Rokocin, gm. Starogard Gdański.

Powierzchnia działki - 997 m2, klasa gruntu RV.
Działka posiada bezpośredni dostęp do drogi publicznej gminnej dz. nr 109/62 - ul. Wodna.

Uzbrojenie działki: możliwość podłączenia do sieci wodociągowej, kanalizacji sanitarnej, sieci elektroenergetycznej (istniejąca skrzynka na granicy działki), sieci gazowej zlokalizowanych w przyległej drodze gminnej.

Przeznaczenie terenu: teren zabudowy mieszkaniowej jednorodzinnej: dopuszcza się lokalizację garaży i budynków gospodarczych oraz innych obiektów związanych w przeznaczeniem podstawowym, typu: altany, wiaty, przydomowe oranżerie oraz oczka wodne.

Od strony północnej działki znajdują się tereny zielone - bez możliwości zabudowy.
Teren oznaczony symbolem 175.ZP - Teren zieleni urządzonej.
Teren oznaczony symbolem 176.ZL - Lasy.

Więcej informacji udzielę telefonicznie.
Nie odpowiadam na wiadomości SMS.

  • ul. Wodna, Rokocin, gmina Starogard Gdański, powiat starogardzki  
  • Na sprzedaż działka budowlana o powierzchni 997 m²  
  • Media woda
  • Oferta bezpośrednio od właściciela dodana dodana dzisiaj
Ta nieruchomość może być Twoja od.. sprawdź
35000 zł (20%) Okres spłaty: 30 lat

Podobne działki na sprzedaż

4
Działka budowlana Rokocin

129 999

1150

Działka budowlana 1150 m² - Rokocin, gmina Starogard Gdański Na sprzedaż działka budowlana o powierzchni 1150 m², oznaczona numerem ewidencyjnym 309/30, położona w miejscowości Rokocin, gmina Starogard Gdański. Działka objęta jest Miejscowym Planem Zagospodarowania Przestrzennego nr XLVIII/568/2022 ...

Zobacz ogłoszenie
2
Działka budowlana Rokocin, ul. Zblewska

130 000

1166

Witam posiadam na sprzedaż działki z warunkami zabudowy - obrzeża Starogardu Gdańskiego - woda - przyłącze przy każdej działce - skrzynka prądowa do każdej działki - Przepiękna i spokojna okolica - Ogłoszenie dotyczy działki o metrażu 1166 m2 - możliwość wyboru działki , wszystkie po tyle samo...

Zobacz ogłoszenie
8
Działka budowlana Rokocin, ul. Diamentowa

160 000

1000

Działka budowlana o pow. 1000 m2 (istnieje możliwość kupienia większej) w cichym, spokojnym zakątku Rokocina. Działka, na której możecie wybudować swój wymarzony dom, znajduje się przy ulicy Diamentowej we wsi Rokocin koło Starogardu Gdańskiego. Działka objęta MPZP jako działka pod zabudowę jednoro...

Zobacz ogłoszenie
5
Działka budowlana Rokocin

180 000

1500

Na sprzedaż dwie atrakcyjne działki budowlane o powierzchni 1500 m² oraz 2051 m², zlokalizowane w miejscowości Rokocin, gmina Starogard Gdański. Położone są 400 m od ul. Zblewskiej za stacją benzynową "Stenka". Powierzchnie i numery działek: Działka nr 303/14 o powierzchni 1500 m² - w kształcie tra...

Zobacz ogłoszenie
6
Działka budowlana Rokocin

180 000

1500

Działka budowlana - Rokocin, gm. Starogard Gdański Na sprzedaż działka budowlana o powierzchni 1500 m² w miejscowości Rokocin, zaledwie 5 minut od centrum Starogardu Gdańskiego. Działka nr 303/11 przeznaczona jest pod zabudowę jednorodzinną zgodnie z miejscowym planem zagospodarowania przestrzennego...

Zobacz ogłoszenie
1
Działka budowlana Janowo, ul. Wspólna

145 000

1000

Sprzedam działki budowlane w Janowie przy ul. Wspólnej, koło Starogardu Gdańskiego. Spokojna okolica, blisko Starogardu, szkoła, przedszkole. Blisko do centrum miasta. Cena: 145 zł/m2. Każda z działek ma około 1000 m2. Działki uzbrojone, z miejscowym planem zagospodarowania przestrzennego. Więcej in...

Zobacz ogłoszenie