Działka na sprzedaż bez pośredników
Szczutki  

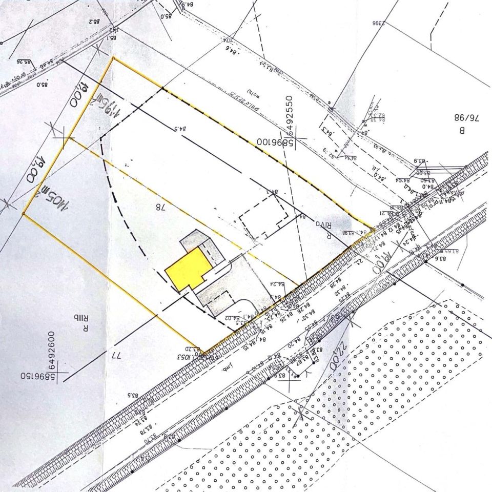
Działka budowlana Szczutki. Zdjęcie 1

Działka na sprzedaż bez pośredników Szczutki

220 000
100 zł/m²
2 200
Szczutki - lokalizacja przybliżona
Bezpośrednio od właściciela

Jeśli nie potrzebujesz pośrednika, zaoszczędzisz około 6 600 zł. Potrzebujesz wsparcia? Skorzystaj z pomocy agenta.

Witam,
mamy do sprzedania działkę budowlaną o pow. 2200 m2 z warunkami zabudowy na dwa budynki i wydanym pozwoleniem na budowę - projekt domu – Sosenka IV o pow. użytkowej 63,32 m2. Powierzchnia całkowita 78,52 m2. Domek idealny dla osób, którzy marzą o małym domku na wsi, blisko miasta. Projekt jest idealną propozycją dla osób zainteresowanych domem z dachem dwuspadowym, co pozwala na znaczne oszczędności. W projekcie są: na dole - salon o pow. 25,10 m2, kuchnia 9,69 m2., łazienka z toaletą 4,91 m2., pomieszczenie gospodarcze , sień, u góry są: 2 sypialnie, toaleta. Taras umieszczony jest od strony południowej. Wszystkie dokumenty przygotowane pod budowę małego, drewnianego domku, jest to ważny aspekt, jeśli ktoś nie chce czekać z budową domu. Zalecana przez architekta technologia szkieletu drewnianego zapewnia krótki czas budowy.

MEDIA:
- prąd - jest zgoda z Enea na podłączenie
- woda i gaz w drodze przy działce
- szambo - indywidualnie

LOKALIZACJA:
Szczutki gmina Sicienko - miejscowość położona zaledwie 8 km od Bydgoszczy, przy trasie nr S-5. Tylko 8 km od Bydgoszczy a zaledwie 18 do Zalewu Koronowskiego miejsca do którego każdy chętnie wraca. Blisko Osowej Góry - 3km
Działka znajduje się na nowo powstającym osiedlu domków jednorodzinnych, zaraz za miejscowością Osówiec, jadąc od strony Osowej Góry. Dojazd pod samą działkę drogą asfaltową. Teren działki równy i płaski, w kształcie prostokąta.

Po więcej informacji zapraszam do kontaktu.
Cena do niewielkiej negocjacji.
Ogłoszenie bezpośrednio od właściciela
W razie pytań, proszę o kontakt telefoniczny. Oferta prywatna, bez pośredników. Zapraszam do obejrzenia działki na żywo. Cena do niewielkiej negocjacji.

  • Szczutki, gmina Sicienko, powiat bydgoski  
  • Na sprzedaż działka budowlana o powierzchni 2 200 m²  
  • Plan w serwisie geoportal.gov.pl Otwórz plan
  • Numer ewidencyjny działki 78
  • Dojazd asfalt
  • Ogrodzenie bez ogrodzenia
  • Media woda nieprzyłączona, prąd nieprzyłączony, gaz nieprzyłączony
  • Cena do negocjacji  
  • Oferta bezpośrednio od właściciela dodana ponad miesiąc temu
Ta nieruchomość może być Twoja od.. sprawdź
44000 zł (20%) Okres spłaty: 30 lat

Podobne działki na sprzedaż

1
Działka budowlana Dąbrówka Nowa, ul. Gościniec

200 000

1792

Sprzedam działkę budowlaną w Dąbrówce Nowej k. Bydgoszczy. Lokalizacja: ul. Gościniec Powierzchnia: 1792 m2 Działka z dojazdem. Pomału powstają budynki. Na zdjęciu szacunkowy zarys.

Zobacz ogłoszenie
1
Działka budowlana Gliszcz

141 480

2358

Działka budowlana z miejscowym planem zagospodarowania przestrzennego w miejscowości Gliszcz, gmina Sicienko, o powierzchni 2358 m². Prawo własności - własność, księga wieczysta. Działka narożna, usytuowana na terenie płaskim. Możliwość dostosowania planów budowlanych do preferowanych stron - dwie ...

Zobacz ogłoszenie
4
Działka budowlana Nowa Ruda

180 250

1442

Sprzedam pięknie położoną działkę budowlaną o wielkości 1442 m., mieszczącą się na terenie gminy Sicienko w spokojnej okolicy w otoczeniu pól i lasów, oddaloną od Bydgoszczy 13 km. Działka posiada wydane warunki zabudowy, skrzynkę z prądem i doprowadzoną wodę.

Zobacz ogłoszenie
8
Działka budowlana Dąbrówka Nowa

179 000

2120

Sprzedam działkę budowlaną 2120m2(z możliwością podziału na 2 mniejsze). Działka położona jest w miejscowości Dąbrówka Nowa ok.4 km do granicy miasta Bydgoszcz. W pobliżu las. Niedaleko szkoła, przedszkole, żłobek, kościół, apteka, sklepy, przychodnia. Spokojna okolica. Prąd,gaz,woda w ulicy.Działk...

Zobacz ogłoszenie
6
Działka budowlana Dąbrówka Nowa

219 000

1882

Oferujemy na sprzedaż działka w uroczym miejscu w pobliżu lasu zaledwie kilka kilometrów od Bydgoszczy - w Dąbrówce Nowej. Na sprzedaż działka położone w miejscowości Dąbrówka Nowa w cichej i spokojnej okolicy z dobrym dojazdem do Bydgoszczy / ok 6 km do Osowej Góry /, Działka o powierzc...

Zobacz ogłoszenie
8
Działka budowlana Szczutki

165 000

1037

Witam, mam do sprzedania działkę budowlaną o pow. 1037m2 z wydanym pozwoleniem na budowę i gotowym projektem domu - Blanka o pow. użytkowej 100m2 (powierzchnia zabudowy 159m2) oraz garażem o pow. 17,8m2. Projekt idealny dla rodziny z dwójką dzieci - m.in. - 3 sypialnie, salon o pow. 26,5m2, kuchnia...

Zobacz ogłoszenie