Działka na sprzedaż bez pośredników
ul. Krótka Topola Mała

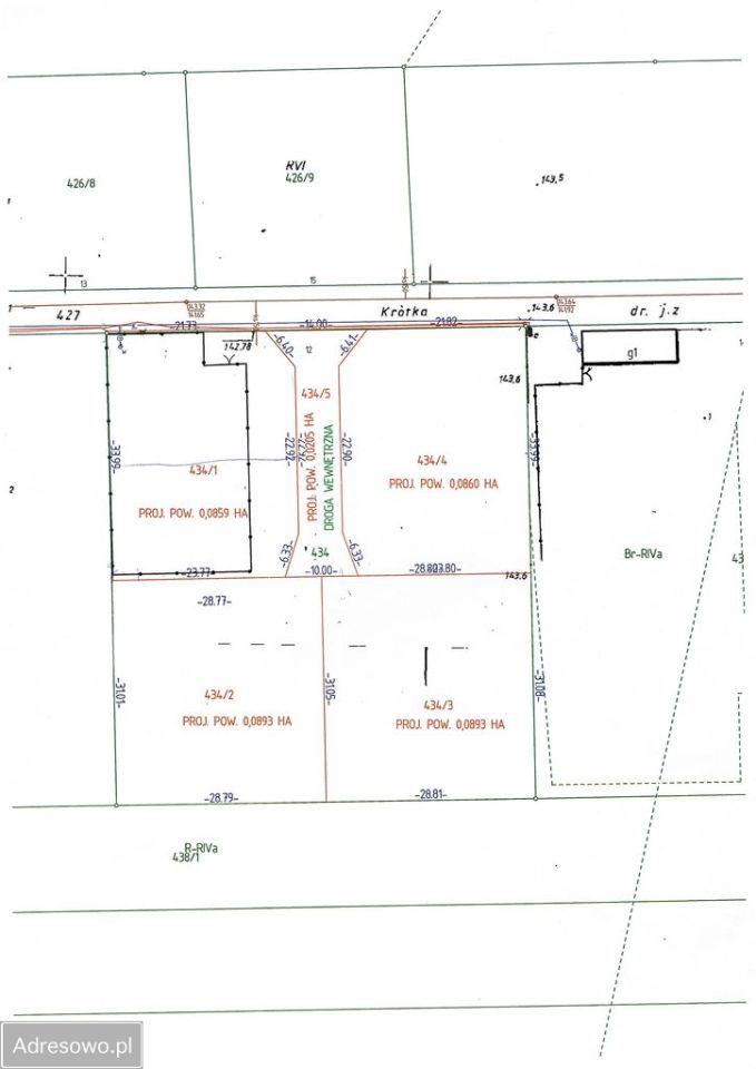
Działka budowlana Topola Mała, ul. Krótka. Zdjęcie 1

Działka na sprzedaż bez pośredników Topola Mała ul. Krótka

170 000
198 zł/m²
859
Topola Mała, Krótka - lokalizacja przybliżona
Bezpośrednio od właściciela

Jeśli nie potrzebujesz pośrednika, zaoszczędzisz około 5 100 zł. Potrzebujesz wsparcia? Skorzystaj z pomocy agenta.

Działka o pow.859m2 (o szerokości frontu ok.25,5 na 34m).

W dniu 10.02.2025 wydano decyzję o warunkach zabudowy na budowę budynku jednorodzinnego wolnostojącego.

Na sprzedaż działka Narożna z udziałem w drodze i warunkami zabudowy.

Od północnej strony przylega do drogi publicznej ul. Krótkiej, zaś od wschodniej strony przylega do drogi nieutwardzonej o szer.6m.

- linia zabudowy – 6,0m od granicy działki od strony ul. KRÓTKIEJ oraz 5m od granicy drogi wewnętrznej.

- wartość wskaźnika intensywności zabudowy na poziomie do 0,31

- udział powierzchni nowej zabudowy: nie więcej niż 171 m2

- udział powierzchni biologicznie czynnej - min.40%

- szerokość elewacji frontowej na poziomie 13,0m +/-20% (tj. od 10,4m do 15,6m)

- wysokość zabudowy do 9,00m

- dach dwuspadowy o kącie nachylenia połaci od 30 do 45 stopni

Przyłącze wody i kanalizacja w działce.

Wodomierz obecnie zdjęty, gdyż nie jest używany.

Prąd w ulicy.

Większa część działki jest ogrodzona płotem betonowym - wynika to z tego, że płot postawiono gdy jeszcze była inna wizja podziału działki rolej na kilka mniejszych budowlanych.

Cena 170 tyś zł (198zł/m2)

  • ul. Krótka, Topola Mała, gmina Ostrów Wielkopolski, powiat ostrowski  
  • Na sprzedaż działka budowlana o powierzchni 859 m²  
  • Dojazd utwardzony
  • Ogrodzenie betonowe
  • Media woda, kanalizacja, prąd
  • Oferta bezpośrednio od właściciela dodana ponad tydzień temu i zaktualizowana 6 dni temu
Ta nieruchomość może być Twoja od.. sprawdź
34000 zł (20%) Okres spłaty: 30 lat

Podobne działki na sprzedaż

3
Działka budowlana Wtórek, ul. Ostrowska

159 900

1050

Sprzedam działkę budowlaną w miejscowości Wtórek, na obrzeżach Ostrowa Wielkopolskiego. Oferta jest prywatna. - Działka ma powierzchnię 1050 m². - Działka usytuowana jest przy drodze głównej. - Atrakcyjnie położona, w okolicy tylko nowe domy, blisko tereny rekreacyjne. - Dostęp do niej jest z dwóc...

Zobacz ogłoszenie
3
Działka budowlana Franklinów

161 460

1196

Na sprzedaż działka budowlana o powierzchni 1196m2 mieszcząca się na terenie wsi Franklinów, powiat ostrowski, gmina Ostrów Wielkopolski. Działka równa i czysta w prostokącie, znajdująca się przy drodze gminnej. Dojazd pod działkę praktycznie cały czas drogą asfaltową. Gaz w drodze. W pobliżu szko...

Zobacz ogłoszenie
5
Działka budowlana Będzieszyn

158 000

1866

Sprzedam działkę budowlaną do zabudowy mieszkaniowej lub usługowej w miejscowości Będzieszyn koło Ostrowa Wielkopolskiego, dojazd drogą asfaltową, z dostępem do prądu i wody. Na działkę o wymiarach 1866m2-85zl/m2 wydano warunki zabudowy na dom jedno rodzinny z płaskim dachem i pomieszczenie garażowe...

Zobacz ogłoszenie
1
Działka budowlana Wtórek, ul. Słoneczna

190 000

1736

Sprzedam działkę budowlaną we Wtórku prz ulicy Słonecznej koło Ostrowa Wielkopolskiego. Teren ogrodzony siatką leśną. W drodze woda, prąd. Powierzchnia 1736m. Cena nie podlega negocjacji.

Zobacz ogłoszenie
20
Działka budowlana Radziwiłłów

153 000

1275

Przedstawiam Państwu nieruchomość gruntową składającą się z 9 bardzo atrakcyjnych działek budowlanych, położonych w miejscowości Radziwiłłów, w gminie Ostrów Wielkopolski. Przez środek całej nieruchomości wytyczono drogę gruntową o szerokości aż 10 m, zapewniając tym samym wygodny i szeroki dojazd ...

Zobacz ogłoszenie
2
Działka budowlana Nowe Kamienice

199 999

1200

Sprzedający: osoba prywatna Opis i cechy Sprzedam działkę budowlaną w miejscowości Nowe Kamienice o powierzchni 1200m2 - wymiary działki 30x40m, - prąd i woda w drodze, - dojazd do działki drogą gminną, - wydane warunki zabudowy do działki. Działka w bliskiej odległości od Ostrowa Wielkopolskie...

Zobacz ogłoszenie