Działka na sprzedaż bez pośredników
Wrociszów  

Działka budowlana Wrociszów. Zdjęcie 1

Działka na sprzedaż bez pośredników Wrociszów

119 000
140 zł/m²
849
Wrociszów - lokalizacja przybliżona
Bezpośrednio od właściciela

Jeśli nie potrzebujesz pośrednika, zaoszczędzisz około 3 600 zł. Potrzebujesz wsparcia? Skorzystaj z pomocy agenta.

Na sprzedaż działki budowlane w cichej i spokojnej okolicy, dookoła pola i las. Działki posiadają warunki zabudowy oraz zostały uzbrojone w prąd, wodę i kanalizację.

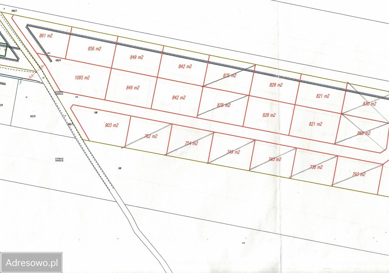
Powierzchnie działek od 821 m2 do 1095 m2 - szczegóły poniżej.

LOKALIZACJA:
Działki znajdują się pod Nową Solą we Wrociszowie w cichej i spokojnej okolicy. Szybki dojazd do Nowej Soli, Kożuchowa i S3. W niedalekiej odległości market Dino, Lidl i stacje benzynowe. Szkoła i przedszkole w Lubieszowie - 3 km.
Działki leżą na terenach niezalewowych i suchych.

MEDIA:
- prąd, woda i kanalizacja doprowadzona na teren działki.

Szczegóły działek:
działka 433/5 - 861m2
działka 433/6 - 856 m2
działka 433/7 - 849 m2
działka 433/8 - 842 m2
działka [numer]9 m2
działka [numer]1 m2
działka [numer]95m2
działka [numer]9 m2
działka [numer]2 m2
działka [numer]8m2
działka [numer]1 m2
działka [numer]3 m2

  • Wrociszów, gmina Nowa Sól, powiat nowosolski  
  • Na sprzedaż działka budowlana o powierzchni 849 m²  
  • Ogrodzenie bez ogrodzenia
  • Media woda, kanalizacja, prąd
  • Oferta bezpośrednio od właściciela dodana ponad tydzień temu
Ta nieruchomość może być Twoja od.. sprawdź
24000 zł (20%) Okres spłaty: 30 lat

Podobne działki na sprzedaż

2
Działka budowlana Jeziorna

130 000

900

OFERUJĘ DO SPRZEDAŻY działki budowlane w Jeziornej nad jeziorem Jeziorno w bliskim sąsiedztwie jeziora Sławskiego. Działki o powierzchni od 850 do 1000m² prostokątne, teren płaski. Cena za 1m2 wynosi 140 zł. Ogłoszenie grzecznościowe, proszę dzwonić lub pisać na dane widoczne na zdjęciu. Działka ma...

Zobacz ogłoszenie
2
Działka budowlana Lubięcin

zapytaj

1383

Na sprzedaż 9 działek budowlanych (1099/1, 1099/2, 1099/3, 1099/4, 1099/5, 1099/6, 1099/7, 1099/8, 1099/9) w miejscowości Lubięcin, województwo lubuskie, gmina Nowa Sól. Działki są o powierzchni od 11 do 15 arów. W MPZP funkcja mieszkaniowa „MN”. Dostęp do drogi na dz. nr 526/21, w drodze 526/21 sie...

Zobacz ogłoszenie
12
Działka budowlana Stany

105 300

810

Sprzedam działkę budowlaną w m. Stany k. Nowej Soli o powierzchni 8,10 arów. Dojazd drogą bitumiczną z Nowej Soli 6 km. od strony wschodniej i zachodniej istniejący las. W pobliży ścieżka rowerowa przez rz. Odrę relacji Nowa Sól-Wolsztyn. Cena do negocjacji. Urokliwa dzielnica domków jednorodzinnyc...

Zobacz ogłoszenie
1
Działka budowlana Lelechów

100 000

1000

Działki budowlane położone w miejscowości Lelechów o powierzchni do 1000 m². Działki położone są w bardzo spokojnej okolicy, a jednocześnie blisko miasta Nowa Sól, co zapewnia szybki dostęp do miejsc użyteczności publicznej, szkół, przedszkoli, ośrodków zdrowia, szpitala i Policji. W niedalekiej o...

Zobacz ogłoszenie
4
Działka budowlana Stany

140 000

1476

Sprzedam działkę budowlaną w miejscowości Stany koło Nowej Soli. Okolica cicha i spokojna. W pobliżu: - las, - plac zabaw, - siłownia pod chmurką, - kościół, - przystanek autobusowy, - oraz atrakcja ścieżki rowerowej - most kolejowy. Dojazd drogą utwardzoną. Działka o numerze 770/18 na planie pros...

Zobacz ogłoszenie
12
Działka budowlana Stany

105 430

811

Sprzedam działkę budowlaną w m. Stany k. Nowej Soli o powierzchni 8,11 arów. Dojazd drogą bitumiczną z Nowej Soli 6 km. od strony wschodniej i zachodniej istniejący las. W pobliży ścieżka rowerowa przez rz. Odrę relacji Nowa Sól-Wolsztyn. Cena do negocjacji. Urokliwa dzielnica domków jednorodzinnyc...

Zobacz ogłoszenie