Dom na sprzedaż bez pośredników
ul. Wspólna Mąkoszyn

dom wolnostojący, 4 pokoje Mąkoszyn, ul. Wspólna. Zdjęcie 1

Dom na sprzedaż bez pośredników Mąkoszyn ul. Wspólna

570 000
4 297 zł/m²
132
4 pok.
Mąkoszyn, Wspólna - lokalizacja przybliżona
Bezpośrednio od właściciela

Jeśli nie potrzebujesz pośrednika, zaoszczędzisz około 17 100 zł. Potrzebujesz wsparcia? Skorzystaj z pomocy agenta.

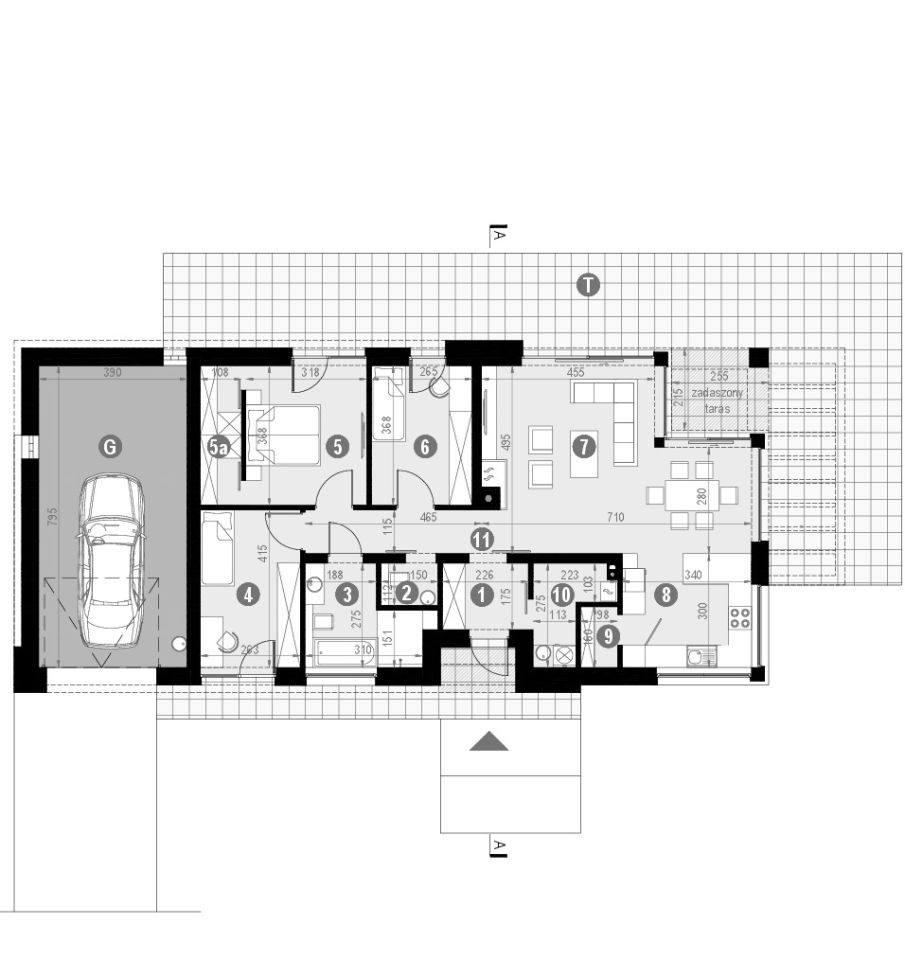
Dom energooszczędny w/g projektu Homekoncept 44 G1 w budowie.
Lokalizacja: 25 min do centrum Łodzi.
Właściciel/Wykonawca: Energo-Haus sp. z o.o.
Jesteśmy firmą z 18- letnim stażem w branży budowlanej klasy PREMIUM Zakres prac oraz stan wykończenia (stan surowy zamknięty, stan deweloperski lub stan wykończeniowy) do uzgodnienia z klientem. Ogrzewanie, układ pomieszczeń do uzgodnienia- dowolne zmiany.
Podana cena jest ceną brutto (z VAT 8%) do stanu deweloperskiego w wersji energooszczędnej i ekologicznej.
Informacje bardziej szczegółowe o firmie oraz technologii budowy na stronie:
mail:

  • ul. Wspólna, Mąkoszyn, gmina Tuszyn, powiat łódzki wschodni  
  • Na sprzedaż dom wolnostojący o powierzchni 132,65 m², 4 pokoje wybudowany w 2023 roku
  • Sizing Streamline Icon: https://streamlinehq.com
    Działka 1 400 m²  
  • Budynek w stanie do wykończenia  
  • Taras, garaż  
  • Materiał budowy drewno
  • Dach blachodachówka
  • Okna plastikowe
  • Dojazd asfalt
  • Media woda, oczyszczalnia przydomowa, prąd
  • Cena do negocjacji  
  • Oferta bezpośrednio od właściciela dodana ponad miesiąc temu i zaktualizowana wczoraj
Ta nieruchomość może być Twoja od.. sprawdź
114000 zł (20%) Okres spłaty: 30 lat

Podobne domy na sprzedaż

9
dom wolnostojący, 5 pokoi Kurowice Kościelne, ul. Kościelna

655 000

128

5 pok.

Nowoczesny dom z garażem i dużą działką - Kurowice, ul. Kościelna 81 - 128 m² Zapraszam, jeśli szukasz nowoczesnego domu z ogrodem 1280 m2. To miejsce to przytulna oaza dla Twojej rodziny w otoczeniu Parku Krajobrazowego. *** Bez podatku 2% PCC - oszczędzasz tysiące złotych! *** Marzysz o nowocze...

Zobacz ogłoszenie
10
bliźniak, 5 pokoi Justynów, ul. Piaskowa

700 000

109

5 pok.

Nowoczesny i komfortowy dom dla 4-5 osobowej rodziny. Wybudowany w 2023 roku. Układ pomieszczeń sprzyja komunikacji, a jednoczesnie posiada wydzieloną część intymną, brak jest zbędnych i niewykorzystantch przestrzeni. Strefa dzienna to: salon z kuchnią i jadalnią spiżarnia komfortowa łazienka ...

Zobacz ogłoszenie
1
dom wolnostojący Huta Wiskicka

450 000

100

Mam do sprzedania dom do remontu na działce 3500 m2 z 2 murowanymi garażami i budynkami gospodarczymi. Z dwóch stron jest dojazd do działki, więc można część działki sprzedać. Do tego zostawiam wełnę skalną na elewację i na poddasze oraz drzwi do garaży i pomieszczeń gospodarczych. Cena: 450 tys....

Zobacz ogłoszenie
22
bliźniak, 5 pokoi Justynów, ul. Piaskowa

670 000

109

5 pok.

Oddany do użytkowania, wygodny dom // apartament, usytuowany w kameralnym osiedlu zamkniętym. Dostępny od zaraz. Powierzchnia użytkowa domu - 109 m2 Powierzchnia całkowita - 163 m2 Powierzchnia zabudowy - 81 m2 Wokół zieleń, lasy, cisza, a przy tym dogodny dojazd do Łodzi jak i Warszawy. Żłobek, prz...

Zobacz ogłoszenie
9
dom wolnostojący, 5 pokoi Żakowice, ul. Piotrkowska

450 000

120

5 pok.

sprzedam dom w 1/4 podpiwniczony z dwoma mieszkaniami na poddaszu. na działce jest studnia ,garaż wolnostojący ,budynek gospodarczy.dom oddalony od stacji PKP ok800m.w ulicy przystanki BUS.

Zobacz ogłoszenie
8
dom wolnostojący Borowa

650 000

90

Mam do sprzedania dom jednorodzinny. Dom parterowy z otwartym salonem i antresolą. Wybudowany w 2018 roku. W budynku znajdują się: - duży, wysoki salon, - kuchnia, - łazienka, - garderoba, - kotłownia, - antresola, na której jest sypialnia około 30 m² (nie jest wliczona do powierzchni użytkowej). ...

Zobacz ogłoszenie