Dom na sprzedaż bez pośredników
Krzywołęcz  

dom wolnostojący, 4 pokoje Krzywołęcz. Zdjęcie 1

Dom na sprzedaż bez pośredników Krzywołęcz

960 000
5 669 zł/m²
169
4 pok.
Krzywołęcz - lokalizacja przybliżona
Bezpośrednio od właściciela

Jeśli nie potrzebujesz pośrednika, zaoszczędzisz około 28 800 zł. Potrzebujesz wsparcia? Skorzystaj z pomocy agenta.

Są domy "do zamieszkania" i są domy, w których najdroższe decyzje są już podjęte. Tu masz właśnie ten drugi przypadek: dębowa stolarka, drewniane podłogi, granitowe parapety zewnętrzne, rynny miedziane, dachówka ceramiczna i około 500 m² kostki (podjazdy, parking, opaska, taras) — czyli rzeczy, które dziś kosztują fortunę i zwykle "bolą" po zakupie.

Do tego parter (komfort codzienności), gazowe ogrzewanie i praktycznie zerowe uciążliwości: 1 sąsiad, cisza, a jednocześnie ok. 7 km do Staszowa.

Dojazd i wjazd : wykonana jest droga prywatna wewnętrzna wyłożona kostką brukową, która łączy trzy domy. Wjazd bezpośrednio z drogi powiatowej na drogę prywatną — bez błota, bez kolein, bez "polnej przeprawy".

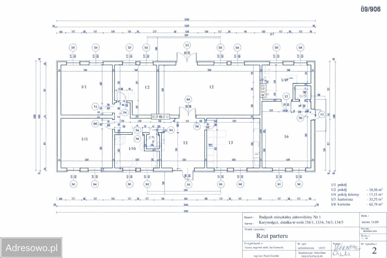
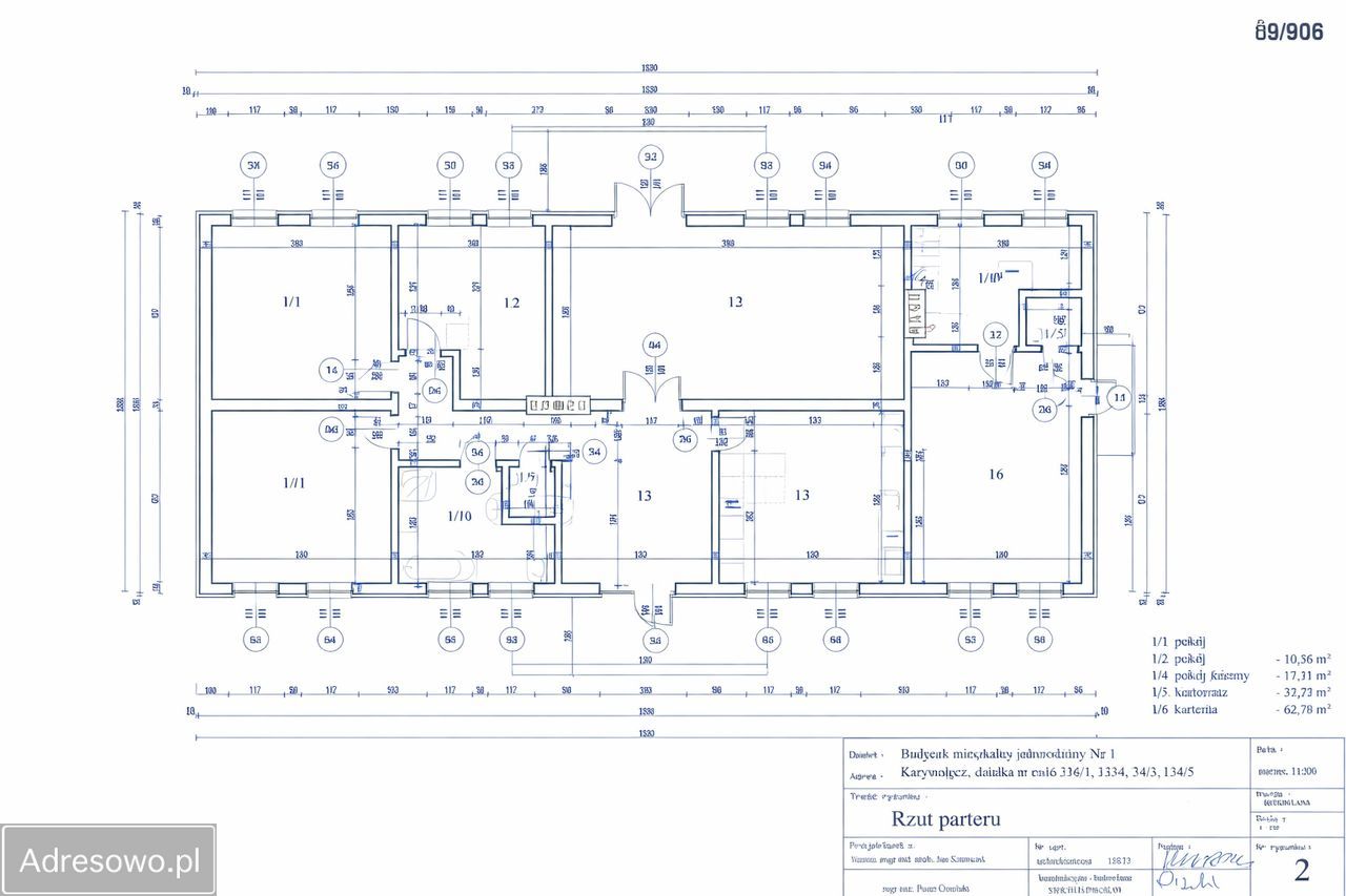
Układ pomieszczeń (rzut parteru) - z metrażami:
- Pokój / sypialnia (1/1): 17,35 m²
- Pokój / sypialnia (1/2): 14,58 m²
- Pokój dzienny / salon (1/3): 35,94 m²
- Kotłownia (1/4): 8,59 m²
- WC (1/5): 1,62 m²
- Pomieszczenie gospodarcze (1/6): 21,24 m² (świetne na pralnię, spiżarnię, warsztat lub dużą garderobę)
- Kuchnia (1/7): 19,17 m²
- Korytarz (1/8): 22,24 m²
- WC (1/9): 1,62 m²
- Łazienka (1/10): 9,65 m²
- Pokój / sypialnia (1/11): 17,35 m²

Razem: 169,35 m² powierzchni użytkowej.

  • Krzywołęcz, gmina Staszów, powiat staszowski  
  • Na sprzedaż dom wolnostojący o powierzchni 169,35 m², 4 pokoje wybudowany w 2016 roku
  • Sizing Streamline Icon: https://streamlinehq.com
    Działka 3 686 m²  
  • Budynek w stanie do zamieszkania  
  • Taras, garaż  
  • Ogrzewanie gazowe
  • Materiał budowy keramzyt
  • Dach dachówka
  • Okna plastikowe
  • Dojazd utwardzony
  • Ogrodzenie murowane
  • Media woda, kanalizacja, prąd, gaz
  • Oferta bezpośrednio od właściciela dodana ponad miesiąc temu i zaktualizowana ponad tydzień temu
Ta nieruchomość może być Twoja od.. sprawdź
192000 zł (20%) Okres spłaty: 30 lat

Podobne domy na sprzedaż

4
bliźniak, 5 pokoi Staszów, ul. Henryka Sienkiewicza

680 000

170

5 pok.

Sprzedam dom jednorodzinny ( mogą zamieszkać dwie rodziny ) nowy , w zabudowie bliźniaczej w stanie deweloperskim, położony w Staszowie przy ul. Sienkiewicza, na działce 391 m kw. Działka ogrodzona, wylewka pod garaż. Dom o wymiarach 9,0 x 9,0 m, parter , piętro i poddasze do wykorzystania według po...

Zobacz ogłoszenie
5
dom wolnostojący Staszów

610 000

103

Nowe osiedle zlokalizowano w spokojnej i malowniczej okolicy, w otoczeniu lasu (Zielona Dolina). To wspaniałe miejsce pozwalające obcować z przyrodą i dające poczucie spokoju i wyciszenia. Oddalone o niespełna 2 km od centrum Staszowa. Działka o powierzchni 9 arów, o wymiarach: szer. 25 m, dł. 36 m...

Zobacz ogłoszenie
7
dom wolnostojący Czajków Południowy

750 000

169

Wyobraź sobie przestrzeń, która jest w 100% Twoja. Nie kompromis, nie cudze pomysły, nie wnętrze „jak u wszystkich”. Ale Twój styl. Twój rytm. Twoje światło. Właśnie taki jest ten dom – z duszą, charakterem i nieograniczonym potencjałem. W stanie surowym zamkniętym, gotowy na Twój plan, Twój projek...

Zobacz ogłoszenie
8
bliźniak Staszów

950 000

180

Wyjątkowy dom na sprzedaż - komfort, nowoczesność i przestrzeń w idealnej harmonii. Na sprzedaż oferujemy przestronny i w pełni wyposażony dom jednorodzinny o powierzchni użytkowej 180 m², usytuowany na zadbanej działce o wielkości 9 arów. To idealna propozycja dla osób poszukujących komfortowego m...

Zobacz ogłoszenie
11
dom wolnostojący, 3 pokoje Oględów

840 000

145

3 pok.

Oferuję komfortowy, nowoczesny, energooszczędny, funkcjonalny dom o powierzchni 268m2., ustawiony na działce o powierzchni 1300m2. Nieruchomość położona jest w cichej i zielonej miejscowości Oględów, wśród zabudowy domów jednorodzinnych - dobre sąsiedztwo, w niedalekiej odległości las, piękne teren...

Zobacz ogłoszenie
12
bliźniak, 4 pokoje Staszów Golejów, ul. gen. Władysława Sikorskiego

655 000

154

4 pok.

Sprzedam dom w zabudowie bliźniaczej w bardzo dobrej lokalizacji ul Sikorskiego ( za szpitalem ). Bardzo ciche i atrakcyjne położenie blisko do jeziora golejowskiego czy galerii staszowskiej jak również do centrum miasta- przed domem parking. Dom usytuowany na ok 6 a działce możliwość dowolnej aranż...

Zobacz ogłoszenie