Ogłoszenie usunięte

Dom na sprzedaż
Rumin  

bliźniak, 5 pokoi Rumin. Zdjęcie 1

Dom na sprzedaż Rumin

-
-
128
5 pok.

Właściciel powierzył sprzedaż nieruchomości pośrednikowi. Możesz zadzwonić lub napisać do agenta za darmo.

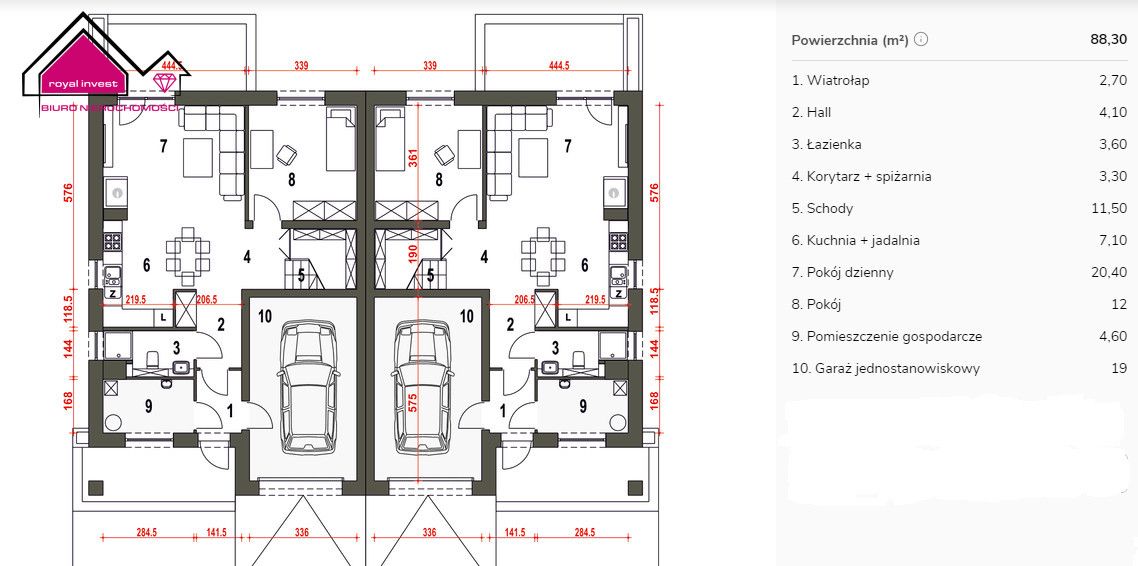
Na sprzedaż oferuję połowę nowoczesnego, dwukondygnacyjnego budynku mieszkalnego w Ruminie (Posoka), gmina Stare Miasto, powiat koniński, projekt budynku Mazurek II z garażem jednostanowiskowym.
Nieruchomość znajduje się na kameralnym, zamkniętym osiedlu, w otoczeniu lasu i natury, co zapewnia ciszę, spokój i wyjątkowy klimat do codziennego życia.
Lokalizacja łączy w sobie bliskość przyrody z wygodą miejskiej infrastruktury. W niedalekiej odległości znajdują się centrum Konina, Centrum Handlowe Ferio, a także dogodny dojazd do przeprawy na Nowy Konin i autostrady A2. W okolicy dostępne są również przedszkola, sklepy, apteka oraz szpital, co sprawia, że to idealne miejsce dla rodzin z dziećmi, osób pracujących w mieście lub szukających spokojnej przestrzeni w zielonym otoczeniu.
Dom jest dwukondygnacyjny, niepodpiwniczony, wyposażony w garaż i zaprojektowany z myślą o funkcjonalności oraz komforcie domowników.  Na parterze znajduje się przestronny, jasny salon z wyjściem na taras, kuchnię, pokój,  łazienkę, pomieszczenie gospodarcze, spiżarnię. Istnieje możliwość zagospodarowania poddasza użytkowego, co daje dodatkową przestrzeń do wykorzystania - np. na gabinet, pokój rekreacyjny lub kolejne sypialnie.
Budynek został wykonany z cegły porotherm, jest ocieplony 20 cm styropianem, a dach pokryty blachodachówką szwedzką. Zastosowano okna PCV 9-komorowe, trzyszybowe, zapewniające bardzo dobrą izolację cieplną i akustyczną, oraz drzwi aluminiowe o wysokim standardzie bezpieczeństwa. Elewację wykończono tynkiem strukturalnym, nadając jej elegancki i nowoczesny wygląd.
W budynku wykonano pełną instalację elektryczną, kanalizację, ogrzewanie podłogowe oraz rozprowadzono instalację wodną. Całość została przygotowana tak, aby umożliwić szybkie wykończenie wnętrza według indywidualnych potrzeb i gustu kupującego.
Powierzchnia domu wynosi od 78 do 128 m, w zależności od wybranej konfiguracji i potrzeb przyszłego właściciela. Dzięki czemu nieruchomość można dopasować zarówno do potrzeb mniejszej rodziny, jak i osób poszukujących większego, bardziej przestronnego domu. Nieruchomość łączy w sobie nowoczesne rozwiązania, solidne wykonanie oraz atrakcyjną lokalizację blisko natury i miejskich udogodnień. 
Serdecznie zapraszam do kontaktu i obejrzenia nieruchomości, naprawdę warto!!!
Aleksandra Stranc
[numer]

  • Oferta z rynku pierwotnego
  • Rumin, gmina Stare Miasto, powiat koniński  
  • Na sprzedaż bliźniak o powierzchni 128 m², 5 pokoi wybudowany w 2025 roku
  • Sizing Streamline Icon: https://streamlinehq.com
    Działka 935 m²  
  • Budynek w stanie do wykończenia  
  • Garaż  
  • Materiał budowy cegła
  • Dach blachodachówka
  • Dojazd utwardzony
  • Ogłoszenie biura nieruchomości  

Aktualne domy na sprzedaż

8
dom wolnostojący, 4 pokoje Krągola

545 000

97

4 pok.

Sprzedam parterowy dom jednorodzinny, znajdujący się w miejscowości Krągola nieopodal Konina. Dom usytuowany jest na działce o powierzchni 10 arów. Posiada powierzchnię 97,70 m2, gdzie znajdują się trzy sypialnie, salon z aneksem kuchennym, łazienka, toaleta, niewielka garderoba oraz pomieszczenie ...

Zobacz ogłoszenie
6
siedlisko Brzeźno

560 000

85

Siedlisko na sprzedaż, Brzeźno. • Cena: 560 000 zł (cena do negocjacji). • Powierzchnia działki: 1200 m2. • Rok budowy: 1976. Na sprzedaż dom jednorodzinny (85 m2) z możliwością zagospodarowania poddasza. - 3 pokoje, kuchnia, łazienka. - Częściowo do remontu, w połowie podpiwniczony. Na działce z...

Zobacz ogłoszenie
5
bliźniak Karsy

499 000

130

Lokal mieszkalny, budowany systemem energooszczędnym, o powierzchni ok. 130 m na działce ok. 5 ar w miejscowości Karsy nad zalewem. PARAMETRY TECHNICZNE: • Materiał: wybudowany z solbetu 24 cm + 15 cm styropian grafit + tynk zewnętrzny silikonowy. • Dach: Ruukki. • Okna: 3-szybowe, 6-komorowe Brug...

Zobacz ogłoszenie
16
bliźniak, 4 pokoje Dębicz

zapytaj

171

4 pok.

Dom Bliźniak Stan Surowy Zamknięty Kramsk – Dębicz Prawy bliźniak sprzedany 450 000,00 zł Budynek Mieszkalny Bliźniak Dane techniczne budynku: Powierzchnia zabudowy 80,50 m2 Kubatura 448,40 m3 Powierzchnia mieszkalna: A/Parter: - wiatrołapy 2,25 m2 - korytarze 5,85 m2 - kuchnie 12,18 m2 - łazienki 7...

Zobacz ogłoszenie
10
dom wolnostojący, 4 pokoje Krągola

549 000

98

4 pok.

Witam serdecznie:) Sprzedam parterowy dom jednorodzinny, w stanie prawie deweloperskim, znajdujący się w miejscowości Krągola nieopodal Konina. Dom posiada powierzchnię 97,70 m2 gdzie znajdują się trzy sypialnie, salon z aneksem kuchennym, łazienka, toaleta, niewielka garderoba oraz pomieszczenie ...

Zobacz ogłoszenie
12
dom wolnostojący, 3 pokoje Stare Miasto, ul. Sosnowa

335 000

113

3 pok.

Posiadam na sprzedaż dom wolnostojący w stanie surowym zamkniętym. Dom znajduje się w miejscowości Stare Miasto k Konina. Świetnie położony, blisko sklepy, centrum handlowe, przedszkole i szkoła. Dom wybudowany z solbetu, dach konstrukcja wiązorowa z dachówką betonową, wybudowany na podstawie projek...

Zobacz ogłoszenie