Dom na sprzedaż bez pośredników
Józefatów  

dom wolnostojący, 6 pokoi Józefatów. Zdjęcie 1

Dom na sprzedaż bez pośredników Józefatów

450 000
2 504 zł/m²
179
6 pok.
Józefatów - lokalizacja przybliżona
Bezpośrednio od właściciela

Jeśli nie potrzebujesz pośrednika, zaoszczędzisz około 13 500 zł. Potrzebujesz wsparcia? Skorzystaj z pomocy agenta.

Posiadam do sprzedaży przestronny dom z garażem na 2 auta.

Budynek zlokalizowany jest na działce o powierzchni 2.310 m² w kształcie prostokąta. Dom powstał w technologii drewnianej z bala i posiada powierzchnię użytkową ok. 235 m².
Nie wliczając garażu i kotłowni, powierzchnia mieszkalna to 179,68 m², natomiast powierzchnia zabudowy wynosi 148,09 m².

Dom wybudowany na przełomie 2016/2017 r. W trakcie prac wykończeniowych ekipa remontowa zaprószyła ogień, przez co napaleniu uległa konstrukcja budynku w części poddasza. Dodatkowo prace prowadzone przez PSP spowodowały zalanie części pomieszczeń wodą. Jesteśmy w posiadaniu projektu naprawczego wykonanego przez biuro projektowe.

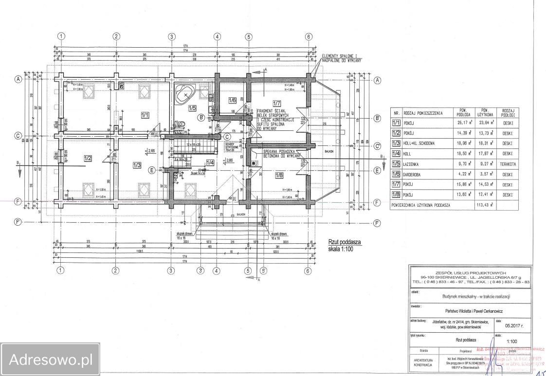
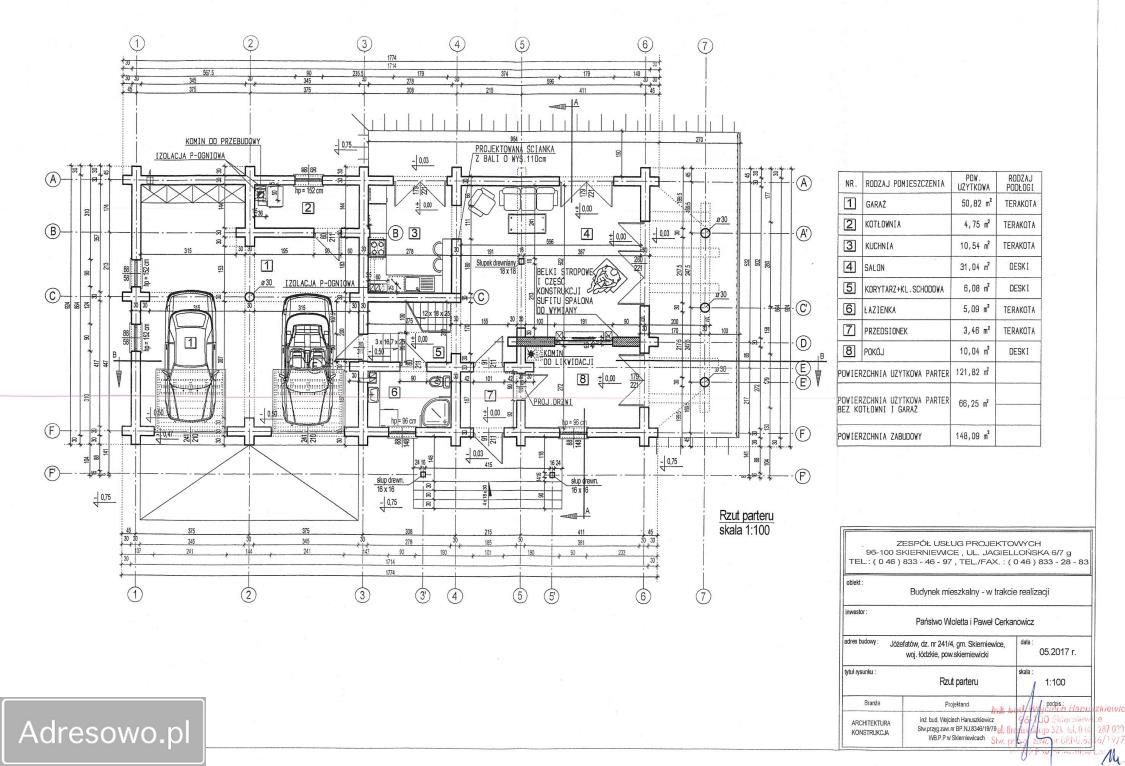
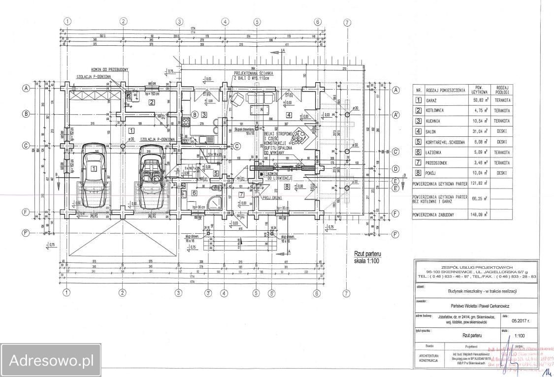
ROZKŁAD POMIESZCZEŃ:

Poziom 0:
- garaż na 2 stanowiska
- kotłownia
- pokój
- salon
- kuchnia
- łazienka
- przedsionek
- klatka schodowa i korytarz

Poddasze:
- 4 sypialnie
- garderoba
- łazienka
- klatka schodowa
- korytarz

LOKALIZACJA:

Nieruchomość wyróżnia atrakcyjna lokalizacja pod miastem we wsi Józefatów, ok. 9 km od Skierniewic, z bardzo dobrym dojazdem (13 min. autem do centrum). Nowy asfalt. Duży podjazd przed domem.
Najbliższe lokalizacje w otoczeniu: Dębowa Góra 4 km, Strobów 5,6 km, Żelazna 3,5 km (szkoła, sklepy, kościół, świetlica, boisko).

Dom zapewnia także intymność i harmonię z naturą, otaczając mieszkańców zielenią. To miejsce tworzy wspaniałe warunki do relaksu i wypoczynku na świeżym powietrzu (idealne tereny na spacery i przejażdżki rowerowe). Piękne, spokojne otoczenie i mili sąsiedzi sprawiają, że codzienne życie staje się jeszcze bardziej malownicze i wyjątkowe.

Zapraszam do kontaktu w celu umówienia się na prezentację

  • Józefatów, gmina Skierniewice, powiat skierniewicki  
  • Na sprzedaż dom wolnostojący o powierzchni 179,68 m², 6 pokoi wybudowany w 2017 roku
  • Sizing Streamline Icon: https://streamlinehq.com
    Działka 2 310 m²  
  • Garaż  
  • Materiał budowy drewno
  • Dach gont bitumiczny
  • Dojazd asfalt
  • Ogrodzenie betonowe
  • Media woda, szambo, prąd, gaz
  • Oferta bezpośrednio od właściciela dodana ponad miesiąc temu i zaktualizowana 6 dni temu
Ta nieruchomość może być Twoja od.. sprawdź
90000 zł (20%) Okres spłaty: 30 lat

Podobne domy na sprzedaż

3
gospodarstwo Wola Szydłowiecka

480 000

200

Sprzedam Leśniczówkę położoną w Woli Szydłowieckiej niedaleko Autostrady A2. W skład zabudowań wchodzą 2 budynki mieszkalne oraz budynki gospodarcze. Do działki prowadzi droga asfaltowa. Działka położona na skraju lasu w okolicach Bolimowskiego Parku Krajobrazowego.

Zobacz ogłoszenie
24
dom wolnostojący, 3 pokoje Nowy Kawęczyn

276 000

110

3 pok.

Sprzedam dom+budynek mieszkalny na działce 1726 metry w miejscowość Nowy Kawęczyn 7.Działka położona jest przy drodze Skierniewice-Rawa Mazowiecka w rozwidleniu dwóch dróg asfaltowych (centrum Nowego Kawęczyna).Działka znajduje się w odległości 7 km.od Skierniewic.Na działce znajdują się dwa budynki...

Zobacz ogłoszenie
17
dom wolnostojący, 6 pokoi Franciszkany

340 000

250

6 pok.

Witam, sprzedam dom w stanie surowym zamkniętym o powierzchni ok. 250m2. Około 5 lat temu wymieniona więźba dachowa wraz z pokryciem. Wymieniono również okna, budynek ocieplony styropianem. Prąd oraz woda podłączone do budynku. W drodze kanalizacja, do podłączenia. Dom stoi na działce o powierzch...

Zobacz ogłoszenie
7
dom wolnostojący Ludwików

600 000

108

Sprzedam dom - stan surowy. Położony niedaleko Skierniewic w miejscowości Ludwików. Doskonały dojazd do centrum miasta, PKP - linia autobusowa, niedaleko znajduje się również niewielki sklep. Działka 1000 m2. Do budynku doprowadzony prąd. Wykonana kanalizacja. Rozprowadzone kable elektryczne, kable ...

Zobacz ogłoszenie