Dom na sprzedaż bez pośredników
Lubieszów  

bliźniak, 3 pokoje Lubieszów. Zdjęcie 1

Dom na sprzedaż bez pośredników Lubieszów

575 000
7 589 zł/m²
75
3 pok.
Lubieszów - lokalizacja przybliżona
Bezpośrednio od właściciela

Jeśli nie potrzebujesz pośrednika, zaoszczędzisz około 17 300 zł. Potrzebujesz wsparcia? Skorzystaj z pomocy agenta.

Szanowni Państwo,
zapraszamy do zapoznania się z naszą nową ofertą nieruchomości – lokale mieszkalne w budynkach dwulokalowych w m. Lubieszów, Gm. Nowa Sól.

Nasze osiedle w Lubieszowie to przyszłościowo zespół budynków zaprojektowany z myślą o osobach poszukujących bliskości z naturą, terenów do uprawiania sportów, a jednocześnie potrzebujących szybkiego dostępu do pełnej infrastruktury wiejsko-miejskiej.

W ramach inwestycji aktualnie powstają dwa budynki dwulokalowe (parter i piętro/poddasze) o pow. ok. 152m2 (każdy lokal ma powierzchnię 75,77m2). Docelowo takich budynków dwulokalowych w tej inwestycji będzie 8, czyli do dyspozycji Klientów oddajemy 16 lokali mieszkalnych.

Cena lokalu w stanie deweloperskim: 575 000,00zł
Cena zawiera m.in. miejsce parkingowe (przed budynkiem), chodnik do drzwi wejściowych, ogródek przydomowy, ogrzewanie podłogowe i pompę ciepła, wszystkie instalacje, itd..


Oferowane lokale składają się z następujących pomieszczeń:
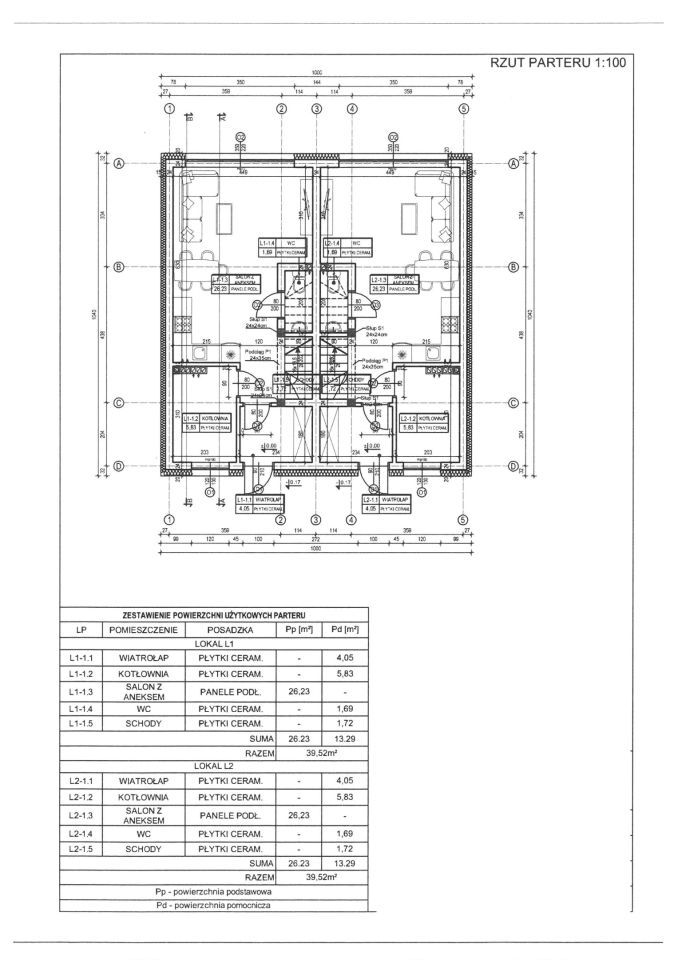
Parter o powierzchni 39,52m2, na który składają się:
1. Wiatrołap – 4,05m2
2. Kotłownia – 5,83m2
3. Salon z aneksem kuchennym – 26,23m2
4. WC – 1,69m2
5. Schody – 1,72m2

Piętro/poddasze o powierzchni 36,25m, na który składają się:
1. Schody – 1,72m2
2. Korytarz – 3,79m2
3. Garderoba – 11,04m2
4. Łazienka – 3,58m2
5. Pokój – 9,36m2
6. Pokój – 6,76m2

Układ pomieszczeń został zaprojektowany z myślą o jak najlepszym komforcie przyszłych Właścicieli. Jednocześnie, konstrukcja budynku pozwala na dowolne projektowanie przestrzeni wewnątrz lokali, co daje możliwość aranżowania ich według potrzeb przyszłych Właścicieli.

STANDARD WYKOŃCZENIA :
• Ściany konstrukcyjne zewnętrzne z SOLBET 24 cm, ocieplenie ścian styropianem o grubości 20cm
• Ścianki wewnętrzne wybudowane z SOLBET 12 cm zgodnie z projektem
• Konstrukcja dachu – więźba dachowa kryta blachą na rąbek
• Stolarka okienna PCV profil sześciokomorowy z pakietem trzyszybowym, kolor antracytowy z zewnątrz i biały od wewnątrz- mające wysokie parametry izolacji cieplnej. W oknach są rolety elektryczne
• Drzwi wejściowe marki Hormann w kolorze antracytowym
• Na elewacji położony tynk jednokolorowy, a wykusz od frontu wykończony blachą (tą, którą pokryty będzie dach)
• Tynki wewnętrzne nakładane mechanicznie, niemalowane
• Rozprowadzenie instalacji elektrycznej (zgodnie z projektem) – uwaga! Nie montujemy osprzętu elektrycznego, Klient dostaje cały osprzęt do samodzielnego montażu w dogodnym dla siebie momencie
• W pomieszczeniach wylana końcowa posadzka betonowa wykonywana mechanicznie z ociepleniem styropianem do dowolnego wykończenia przez Nabywcę
• Rozprowadzenie instalacji wodnokanalizacyjnej wg projektu
• Instalacja grzewcza - ogrzewanie podłogowe
• Pompa ciepła o mocy 5kW wraz z podłączeniem i uruchomieniem przez serwisanta

Każdy lokal posiada ogródek przydomowy o powierzchni zgodnej ze szkicem zagospodarowania terenu , który zostanie ogrodzony płotem panelowym w kolorze antracyt – brak ogrodzenia od frontu domu.

Do każdego lokalu przypisane jest 1 miejsce parkingowe zlokalizowane przy budynku.


Planowany termin zakończenia tego etapu inwestycji (dwa budynki dwulokalowe) to kwiecień-maj 2026r.
Sprzedawana nieruchomość posiadać będzie świadectwo energetyczne.


W przypadku zainteresowania, zapraszamy do kontaktu telefonicznego.

Przedstawiona oferta cenowa ma charakter informacyjny, nie stanowi oferty handlowej w rozumieniu Art.66 par.1 Kodeksu Cywilnego. Treść ma charakter informacyjny i zalecamy jej osobistą weryfikację. Przedstawione wizualizacje budynków są przykładowe i mogą się różnić od stanu ostatecznego wykonania.
Kontaktując się z Firmą wyrażą Państwo zgodę na przetwarzanie danych osobowych zgodnie z przepisami ustawy z dnia 29 sierpnia 1997 roku o ochronie danych osobowych / Dz.U.Nr. 133 poz. 883/. Klientowi przysługuje prawo do wglądu do swoich danych osobowych i ich aktualizacji.

  • Oferta z rynku pierwotnego
  • Lubieszów, gmina Nowa Sól, powiat nowosolski  
  • Na sprzedaż bliźniak o powierzchni 75,77 m², 3 pokoje wybudowany w 2025 roku
  • Sizing Streamline Icon: https://streamlinehq.com
    Działka 188 m²  
  • Budynek z poddaszem użytkowym, w stanie do wykończenia, z aneksem kuchennym  
  • Bez piwnicy  
  • Ogrzewanie pompa ciepła
  • Materiał budowy beton komórkowy
  • Dach blacha
  • Okna plastikowe
  • Dojazd polny
  • Media woda, szambo, prąd, gaz nieprzyłączony
  • Oferta bezpośrednio od właściciela dodana ponad miesiąc temu i zaktualizowana ponad tydzień temu
Ta nieruchomość może być Twoja od.. sprawdź
115000 zł (20%) Okres spłaty: 30 lat

Podobne domy na sprzedaż

8
dom wolnostojący Uście

585 000

70

Dom mieszkalny, całoroczny. Działka nr 134/3, pow. 525 m2. Oferta prywatna. Odległości: - 30 minut z Zielonej Góry - 2 godziny z Wrocławia - 2 godziny ze Szczecina - 1,5 h z Poznania Dom i działka dla miłośników wody, lasów, przyrody, wędkowania, szukających przestrzeni do odpoczynku oraz inwesty...

Zobacz ogłoszenie
8
dom letniskowy Uście

595 000

70

Sprzedam funkcjonujący biznes agroturystyki \"Chata w ciszy\" w województwie lubuskim, gmina Kolsko, miejscowość Uście. Dom położony jest na dużej 16-arowej, malowniczej działce z bezpośrednim dostępem do rzeki Obra Leniwa i z własnym pomostem, z którego w ciągu ok. 20 minut można dopłynąć do jezio...

Zobacz ogłoszenie
7
dom wolnostojący, 2 pokoje Konotop Głuszyca

570 000

73

2 pok.

Na sprzedaż wyjątkowe siedlisko położone w samym środku lasu, w urokliwym przysiółku, gdzie znajdują się jedynie 3 inne domy. To idealne miejsce dla osób ceniących ciszę, prywatność i bliskość natury. DANE NIERUCHOMOŚCI: * Powierzchnia domu: 73,21 m² * Powierzchnia działki: 2136 m² * Liczba pokoi:...

Zobacz ogłoszenie
12
dom wolnostojący, 3 pokoje Wrociszów

355 000

100

3 pok.

Witam. Zapraszam do zakupu domu jednorodzinnego, wolnostojącego, w starej zabudowie. Dom składa się z 3 pokoi: 2 sypialnie i salon, kuchni, dużej łazienki, holu, oszklonego ganku oraz pomieszczenia gospodarczego z wyjściem na ogródek. Przy domu znajduje się duży budynek gospodarczy o łącznej powier...

Zobacz ogłoszenie
4
dom wolnostojący, 4 pokoje Uście, os. Polana

490 000

75

4 pok.

Atrakcyjnie położony parterowy murowany wolnostojący całoroczny domek (75m2) połączony z zadaszonym tarasem (15m) -położony przy spokojnej wewnętrznej drodze osiedlowej, w otoczeniu lasów sosnowych i w bliskim sąsiedztwie jezior ( J. Wilcze, J. Rudzieńskie). Pokój dzienny z wyjściem na zadaszony ta...

Zobacz ogłoszenie
7
dom wolnostojący, 5 pokoi Bytom Odrzański, ul. Szeroka

550 000

100

5 pok.

Mam na sprzedaż dom i działkę w bardzo atrakcyjnej lokalizacji. Dom znajduje się w Bytomiu Odrzańskim przy ul. Szerokiej, z dobrym dojazdem do Głogowa. Nieruchomość stoi na działce o powierzchni 707 m² oraz przynależący ogród za domem o powierzchni 16 arów. Łączna powierzchnia, która jest do sprze...

Zobacz ogłoszenie