Dom na sprzedaż bez pośredników
ul. Ogrodowa Mogilno

dom wolnostojący Mogilno, ul. Ogrodowa. Zdjęcie 1

Dom na sprzedaż bez pośredników Mogilno ul. Ogrodowa

690 000
6 273 zł/m²
110
Mogilno, Ogrodowa - lokalizacja przybliżona
Bezpośrednio od właściciela

Jeśli nie potrzebujesz pośrednika, zaoszczędzisz około 20 700 zł. Potrzebujesz wsparcia? Skorzystaj z pomocy agenta.

Sprzedam dom w Mogilnie ul. Ogrodowa w stanie deweloperskim.

Budynek składa się z:
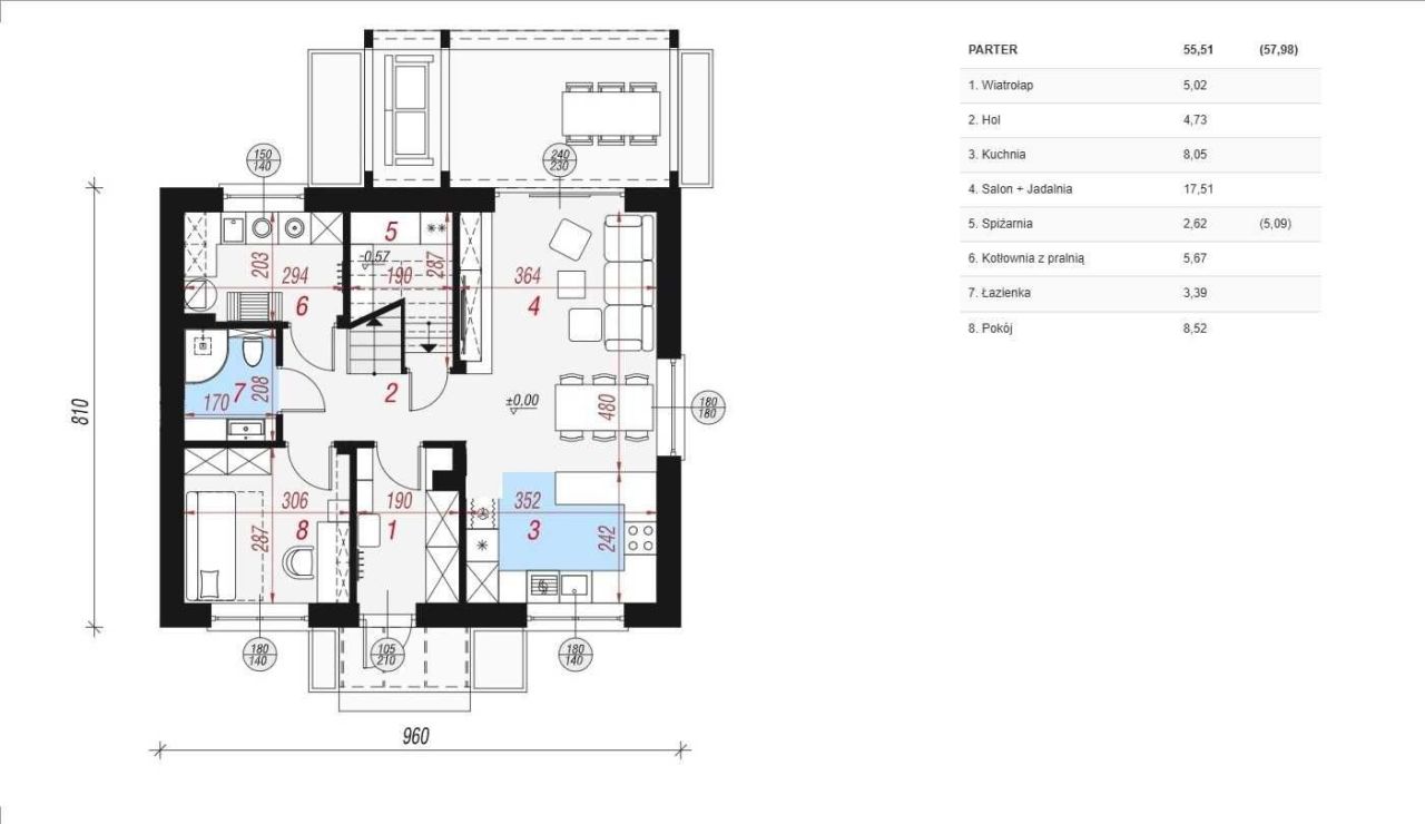
Parter - salon z aneksem kuchennym, pokój, WC, kotłownia, spiżarnia, wiatrołap.
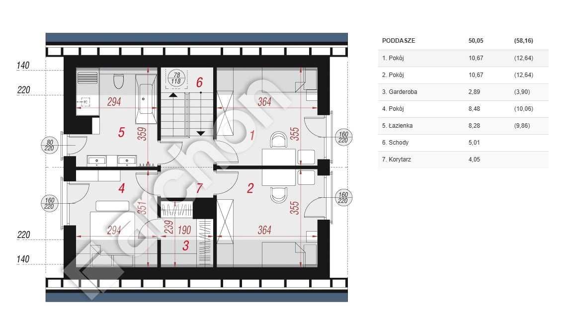
Piętro - trzy pokoje, łazienka.

Szczegółowe informacje:
- Instalacja centralnego ogrzewania (ogrzewanie podłogowe w całym domu).
- Instalacja elektryczna.
- Instalacja wodno-kanalizacyjna.
- Okna trzyszybowe w kolorze antracyt na zewnątrz, od środka białe.
- Elektryczne rolety zewnętrzne na wszystkich oknach.
- Tynki gipsowe.
- Ściany zewnętrzne 24 cm z betonu komórkowego, ocieplone 20 cm styropianem.
- Dach odeskowany, ocieplony, pokryty dachówką ceramiczną czarną.
- Wykonany taras, podjazd, chodnik.
- Działka ogrodzona z trzech stron.

Więcej informacji pod nr telefonu.

  • Oferta z rynku pierwotnego
  • ul. Ogrodowa, Mogilno, powiat mogileński  
  • Na sprzedaż dom wolnostojący o powierzchni 110 m²  
  • Sizing Streamline Icon: https://streamlinehq.com
    Działka 780 m²  
  • Budynek w stanie do wykończenia, z aneksem kuchennym  
  • Taras  
  • Materiał budowy beton komórkowy
  • Dach dachówka
  • Oferta bezpośrednio od właściciela dodana ponad tydzień temu i zaktualizowana wczoraj
Ta nieruchomość może być Twoja od.. sprawdź
138000 zł (20%) Okres spłaty: 30 lat

Podobne domy na sprzedaż

1
dom wolnostojący Gębice

530 000

100

Witam. Ogłoszenie na prośbę znajomego. Posiadam na sprzedaż dom o powierzchni 100 m2, działka 840 m2, budynek gospodarczy, garaż. Media: kanalizacja, wodociąg, prąd, internet (doprowadzony światłowód, nie podłączony). Droga asfaltowa. Posesja ogrodzona. Budynek podpiwniczony, poddasze do zagospod...

Zobacz ogłoszenie
8
dom wolnostojący, 5 pokoi Gębice, ul. Wolności

650 000

110

5 pok.

Sprzedam dom w Gębicach koło Mogilna w województwie kujawsko-pomorskim. Dom z czerwonej cegły, ocieplony, podpiwniczony, centralne ogrzewanie, piec na ekogroszek, dom bardzo ciepły. Pięć pokoi, dwie łazienki, kuchnia, duży taras. Powierzchnia domu 110 m2, działki 1600 m2 Działka ogrodzona i zagospod...

Zobacz ogłoszenie
8
dom wolnostojący, 3 pokoje Żabno

790 000

147

3 pok.

Działka z domem i dostępem do jeziora. Dom wolnostojący na sprzedaż o powierzchni 147 m2 w Żabnie, koło Mogilna. Na który składają się następujące pomieszczenia: - 3 pokoje, - salon z aneksem kuchennym, - korytarz, - kuchnia letnia, - poddasze (strych użytkowy). Dom wolnostojący znajduje się na dzi...

Zobacz ogłoszenie
17
dom wolnostojący, 4 pokoje Mogilno, ul. Niezłomnych

499 000

86

4 pok.

OFERTA PRZEDSPRZEDAŻOWA! Zobacz nasz dom pokazowy na żywo: Mogilno, ul. Niezłomnych! Możliwość wykończenia domu pod klucz! Z przyjemnością przedstawiamy wyjątkową ofertę przedsprzedażową na nowe domy parterowe wolnostojące o powierzchni użytkowej 86 m², zlokalizowane w miejscowości Mogilno przy ul...

Zobacz ogłoszenie
8
dom wolnostojący, 3 pokoje Gębice

650 000

80

3 pok.

Dom wolnostojący z cegły. Ogrzewanie gazowe z własną butlą na gaz. Posiada 3 pokoje, kuchnię, łazienkę, poddasze gotowe do adaptacji na mieszkanie. Z przodu domu wiata na auto, z tyłu duży taras oraz wiata z drewna na końcu ogrodu. Działka ogrodzona, brama na pilota, rolety w oknach. Zapraszam do ob...

Zobacz ogłoszenie
8
bliźniak Mogilno

550 000

147

Sprzedam dom mieszkalny w Mogilnie BLIŹNIAK / dom dwu rodzinny. Dom z zewnątrz docieplany styropianem (ściany i dach). Dwa niezależne mieszkania 1- piętrowe. Oddzielne wejścia, osobne liczniki, wspólne ogrzewanie. Wspólnie 147 M2. Działał 801m2. Dom 1 - parter: kuchnia, łazienka , pokój , schody dr...

Zobacz ogłoszenie