Dom na sprzedaż bez pośredników
Kryg  

dom wolnostojący Kryg. Zdjęcie 1

Dom na sprzedaż bez pośredników Kryg

395 000
1 056 zł/m²
374
Kryg - lokalizacja przybliżona
Bezpośrednio od właściciela

Jeśli nie potrzebujesz pośrednika, zaoszczędzisz około 11 900 zł. Potrzebujesz wsparcia? Skorzystaj z pomocy agenta.

Przestronny dom z ogromnym potencjałem i wyjątkowym klimatem za jedyne 495 000 zł!
Jeśli marzysz o nieruchomości, która łączy historię i nieograniczone możliwości, to jest oferta dla Ciebie!

Na sprzedaż fantastyczny dom o powierzchni całkowitej 582 m2 położony na działce 13 arów!

POTENCJAŁ INWESTYCYJNY!

Dom zlokalizowany jest w centrum Krygu 38-304, 7 km od powstającej Strefy Aktywności Gospodarczej w Gorlicach oraz 140 km od Krakowa. Ogromnym atutem tej nieruchomości jest jej potencjał inwestycyjny ze względu na dużą powierzchnię oraz to, że posiada 3 oddzielne mieszkania. Wszystko to sprawia, że bardzo dobrze by się sprawdziła jako:

- coworking space (posiada łącze światłowodowe o prędkości 1 Gb/s),

- prowadzenie działalności biurowej,

- magazyn lub warsztat (duża piwnica około 250 m2),

- mieszkania pod wynajem (posiada 3 oddzielne mieszkania oraz wspólny korytarz),

- dla rodziny wielopokoleniowej.

W celu uzyskania większej ilości informacji serdecznie zapraszam do kontaktu telefonicznego.

  • Kryg, gmina Lipinki, powiat gorlicki  
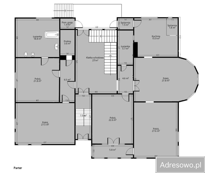
  • Na sprzedaż dom wolnostojący o powierzchni 374 m² wybudowany w 1949 roku
  • Sizing Streamline Icon: https://streamlinehq.com
    Działka 1 343 m²  
  • Budynek w stanie do częściowego remontu  
  • Piwnica  
  • Cena do negocjacji  
  • Oferta bezpośrednio od właściciela dodana ponad miesiąc temu i zaktualizowana ponad tydzień temu
Ta nieruchomość może być Twoja od.. sprawdź
79000 zł (20%) Okres spłaty: 30 lat

Podobne domy na sprzedaż

6
dom wolnostojący Wola Łużańska

340 000

270

Do sprzedania dom w Woli Łużańskiej o powierzchni 270 m² na działce 16 ar, usytuowany przy głównej drodze. Składa się z trzech poziomów: 1. Garaż, piwnica, kotłownia, łazienka. 2. Salon, kuchnia, 2 pokoje, łazienka. 3. 4 pokoje, duża łazienka. Budynek jest w stanie do wykończenia ostatecznego. Pr...

Zobacz ogłoszenie
8
dom wolnostojący Dominikowice

470 000

267

Do sprzedania Dom w malowniczej i spokojnej okolicy. W dość bliskiej odległości znajdują się kurorty wypoczynkowe, takie jak: Zalew klimkówka (16km) Wyciąg narciarski (15km) Krynica Zdrój (45km) Wysowa Zdrój (37km) Magurski Park Narodowy (39km) Nieruchomość gruntowa zabudowana położona w miejscowośc...

Zobacz ogłoszenie
7
dom wolnostojący, 3 pokoje Zagórzany

330 000

240

3 pok.

Szukasz wymarzonego domu pod lasem? Zależy Ci na ciszy, spokoju i bliskości przyrody? Lepszej oferty nie znajdziesz! Zapraszam do zapoznania się z ofertą wyjątkowego domu na sprzedaż, położonego w miejscowości Zagórzany ( woj. małopolskie, powiat gorlicki, gmina Gorlice). To idealna propozycja dla ...

Zobacz ogłoszenie