Ogłoszenie usunięte

Dom na sprzedaż
Nowa Wola  

bliźniak, 4 pokoje Nowa Wola. Zdjęcie 1

Dom na sprzedaż Nowa Wola

-
-
109
4 pok.

Właściciel powierzył sprzedaż nieruchomości pośrednikowi. Możesz zadzwonić lub napisać do agenta za darmo.

OFERTA DEWELOPERSKA - KUPUJĄCY NIE PŁACI 2% PODATKU P.C.C!
0% prowizji dla Kupującego
Rękojmia 5 lat

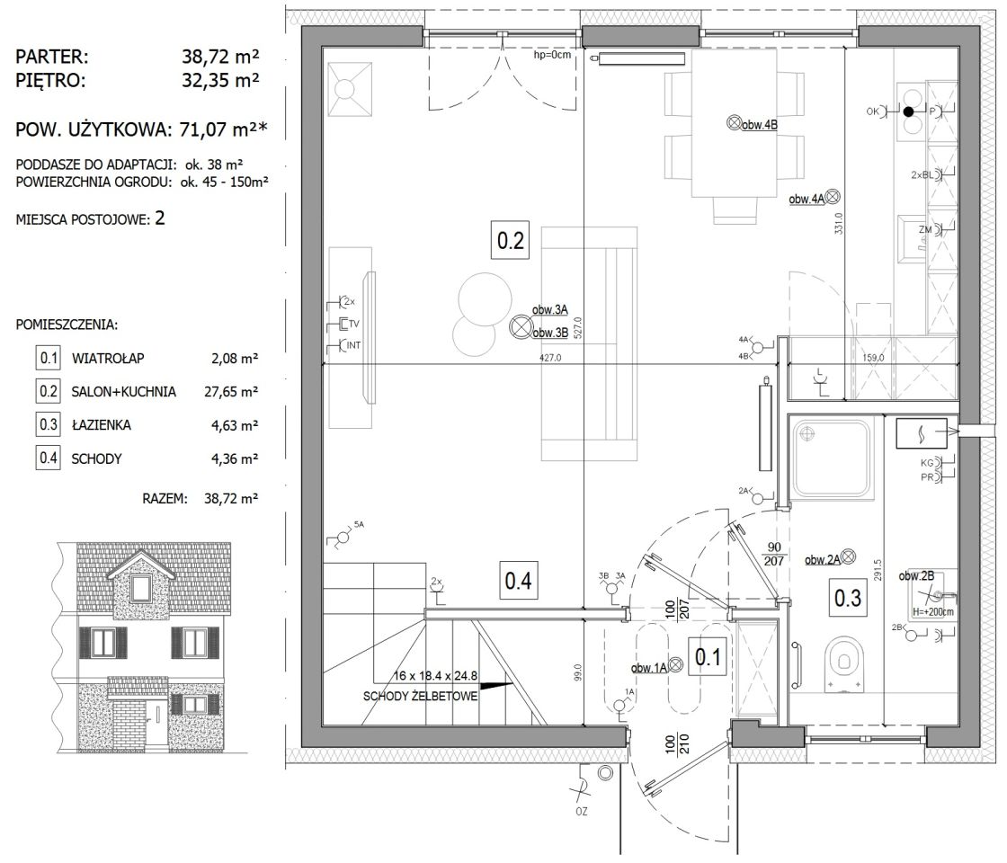
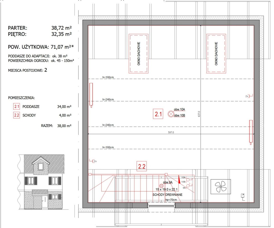
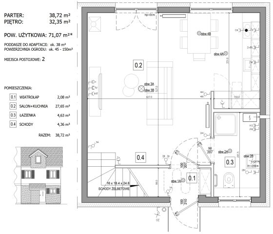
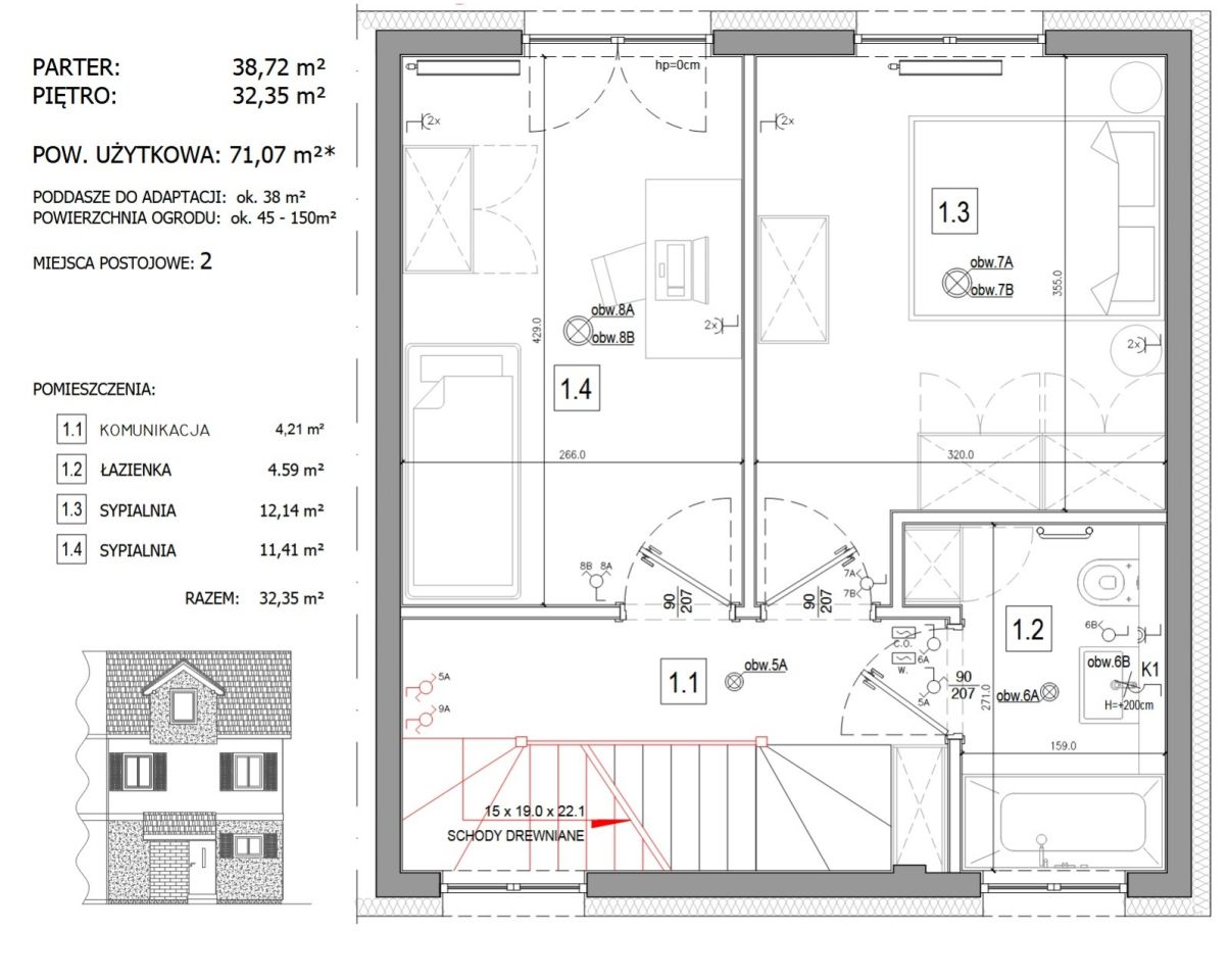
Powierzchnia 109 m² w tym 38 m² poddasza do aranżacji
4 pokoje
Prywatny ogród: 88 m²
2 Miejsca parkingowe w cenie
Oddanie luty 2026r.

Dlaczego to świetny wybór?
Wyobraź sobie poranki z kawą w Twoim prywatnym ogródku, popołudnia w przestronnym salonie i wieczory bez hałasu jest to kameralna, bezpieczna przestrzeń z realnymi zaletami codziennego życia. Łączy funkcjonalność kompaktowego domu z potencjałem do rozwoju (poddasze do własnej aranżacji).

Parter
salon z aneksem kuchennym i wyjściem do ogrodu 27,65 m²
łazienka 4,63 m²
wiatrołap 2,08 m²
schody 4,36 m²
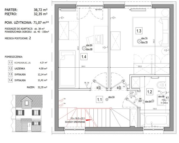
Piętro
sypialnia 12,14 m²
sypialnia 11,41 m²
łazienka rodzinna 4,59 m²
komunikacja 4,21 m²
Poddasze
ok. 38 m² potencjału do aranżacji dodatkowy pokój, pracownia lub strefa relaksu

Najważniejsze atuty techniczne i wykonawcze (co dostaniesz na wejściu )
Solidna konstrukcja i materiały: ściany murowane z ceramiki trwałość i komfort cieplny.
Dwie ściany oddzielone dylatacją pomiędzy segmentami lepsza izolacja akustyczna niż w standardowych bliźniakach.
Poddasz użytkowe możesz bez obaw zagospodarować poddasze (schody i aranżacja po stronie nabywcy).
Dachówka ceramiczna elegancka i trwała powłoka dachu.
Ogród w cenie przestrzeń na ogród, warzywnik, plac zabaw lub relaks przy grillu.
2 miejsca parkingowe w cenie wygoda dla rodziny z dwoma samochodami.
Ograniczone koszty utrzymania niewielki metraż i brak części wspólnych sprzyjają niższym opłatom.

Lokalizacja:
Osiedle położone w Nowej Woli (gmina Lesznowola). Idealne dla osób, które chcą mieszkać poza miastem, ale z szybkim dostępem do stolicy.

Koleje Mazowieckie / SKM: stacja Nowa Iwiczna niecały kilometr; nowo uruchomione linie (S40, S4) około 35 minut do Warszawy Głównej.
1,0 km do granicy miasta
5 min. samochodem do przystanku autobusowego
5 min. samochodem do stacji kolejowej
5 min. samochodem do stacji SKM
dojazd do centrum: 20 min samochodem
Autobus / metro: linie 709 i 727 łączą Nową Wolę ze stacją Metro Wilanowska

W okolicy: sklepy i centra handlowe (Auchan, Biedronka, Lewiatan, Designer Outlet), placówki medyczne (LuxMed, Centrum Damiana), szkoły i przedszkola oraz miejsca rekreacji.

Dlaczego warto?
jakość ścian i izolacji między segmentami (poczuj różnicę w akustyce),
strop poddasza i potencjał adaptacyjny,
bezpośredni dostęp do ogródka

OFERTA DEWELOPERSKA - KUPUJĄCY NIE PŁACI 2% PODATKU P.C.C!
0% prowizji dla Kupującego
Rękojmia 5 lat

Umów się na prezentację ostatnia połówka bliźniaka z oddaniem 02.2026r.

  • Oferta z rynku pierwotnego
  • Nowa Wola, gmina Lesznowola, powiat piaseczyński  
  • Na sprzedaż bliźniak o powierzchni 109 m², 4 pokoje wybudowany w 2026 roku
  • Sizing Streamline Icon: https://streamlinehq.com
    Działka 126 m²  
  • Budynek w stanie do wykończenia  
  • Ogrzewanie gazowe
  • Dojazd asfalt
  • Ogrodzenie metalowe
  • Media woda, kanalizacja, prąd
  • Ogłoszenie biura nieruchomości  

Aktualne domy na sprzedaż

20
bliźniak, 5 pokoi Stefanowo

725 000

90

5 pok.

0% PROWIZJI DLA KUPUJĄCEGO   Zapraszamy do wyjątkowej inwestycji - położonej w otulinie Warszawskiego Obszaru Chronionego. To miejsce, które łączy komfort życia blisko natury z doskonałą komunikacją ze stolicą. Opis inwestycji: Osiedle składa się z nowoczesnych domów bliźniaczych o powierzchni 90m...

Zobacz ogłoszenie
4
dom szeregowy, 4 pokoje Łazy

786 156

93

4 pok.

Zapraszamy do zakupu segmentu środkowego o powierzchni 93,59 m2. Na parterze znajduje się - salon z aneksem kuchennym i wyjściem do ogródka, toaleta oraz korytarz. Piętro to 3 sypialnie i przestronna łazienka. Segment posiad duży ogródek o pow. 73,60 m2. Dodatkowo do zakupu - miejsce postojowe o...

Zobacz ogłoszenie
5
bliźniak, 4 pokoje Łazy

780 000

81

4 pok.

Kupujesz bezpośrednio od dewelopera bez prowizji. Nowoczesna inwestycja położona w zielonej, spokojnej okolicy w Łazach – zaledwie 20 minut od centrum Warszawy. Osiedle tworzą cztery budynki w zabudowie bliźniaczej, zaprojektowane z myślą o komforcie, prywatności i energooszczędności. Cena: od 780...

Zobacz ogłoszenie
9
bliźniak, 5 pokoi Nowa Wola, ul. Dalii

847 000

96

5 pok.

BEZPOŚREDNIA SPRZEDAŻ – Dom gotowy do zamieszkania BEZPIECZNY KREDYT 2% Oferuję na sprzedaż nowoczesny, pasywny dom w zabudowie bliźniaczej położony w Nowej Woli przy ul. Dalii / Ignacego Krasickiego. Segment znajduje się w atrakcyjnej lokalizacji, zaledwie 700 m od przedszkola i szkoły w Lesznowo...

Zobacz ogłoszenie
4
dom szeregowy, 6 pokoi Łazy

827 495

104

6 pok.

Zapraszamy do zakupu segmentu narożnego o powierzchni 104,68 m2. Na parterze znajduje się - gabinet, salon z aneksem kuchennym i wyjściem do ogródka, toaleta oraz korytarz. Piętro to 4 sypialnie i przestronna łazienka. Segment posiad duży, narożny ogródek o pow. 222,60 m2. Dodatkowo do zakupu - ...

Zobacz ogłoszenie
5
bliźniak, 4 pokoje Nowa Wola, ul. Szkolna

960 000

108

4 pok.

DOM NA SPRZEDAŻ bezpośrednio od właściciela zapraszam do oglądania nieruchomości

Zobacz ogłoszenie