Dąbrowica

bliźniak na sprzedaż Bez pośrednika

bliźniak, 6 pokoi Dąbrowica
Cena
1 680 000
Powierzchnia
168
Cena za m²
10 000
Pow. działki
500
Rok budowy
2024
Dąbrowica · 1 680 000 zł

Ogłoszenie właściciela - bez pośredników

bliźniak, 6 pokoi Dąbrowica. Zdjęcie 1
bliźniak, 6 pokoi Dąbrowica. Zdjęcie 1

Bez pośrednika. Oszczędzasz 50 400 zł na prowizji pośrednika!

Do sprzedaży oferuję nowy, świeżo wykończony dom o wysokim standardzie i powierzchni całkowitej 168 m².

Dom posiada 5 niezależnych sypialni oraz 2 garaże. Został wykończony w czerwcu tego roku przy użyciu wysokiej jakości materiałów.

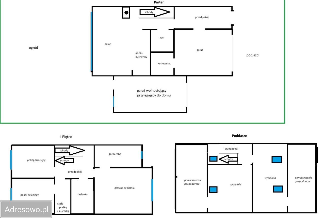
Dom w zabudowie bliźniaczej składa się z 3 kondygnacji:

Parter (66 m²):
- Przedpokój (7 m²): duża szafa w zabudowie, metalowe loftowe drzwi wewnętrzne.
- Garaż i kotłownia (20 m²): brama automatyczna Wiśniowski, antywłamaniowe drzwi między garażem a domem.
- Przedpokój (6 m²): dębowe schody i zabudowa na wymiar pod schodami.
- Salon z aneksem kuchennym (31 m²): dębowy parkiet, kominek, meble kuchenne na wymiar z kamiennym blatem, wysokiej jakości sprzęty AGD, w tym w zabudowie ekspres do kawy Bosch.
- Toaleta (2 m²): kamienny blat pod umywalką.

I piętro (65 m²):
- Główna sypialnia wraz z garderobą (27 m²): klimatyzacja.
- Łazienka (7 m²): dwie umywalki, wanna, prysznic, kamienny blat.
- Przedpokój (8 m²): duża szafa w zabudowie wraz z pralką i suszarką.
- Pokój dziecięcy (12 m²).
- Drugi pokój dziecięcy (11 m²).

Poddasze (36 m²):
Bardzo wysokie, z łagodnymi skosami.
- Przedpokój (6 m²).
- Sypialnia (17 m²).
- Biuro (13 m²).
Dodatkowo, na poddaszu pod skosami znajdują się 2 pomieszczenia gospodarcze po 12 m² każde, licząc po podłodze, i nie są wliczone w metraż.

Otoczenie i ogród:
- Wygodny podjazd z kostki na 3 dodatkowe samochody, do tego drugi wolnostojący garaż przylegający do bryły domu o powierzchni 21 m² (3x7), posiadający instalację elektryczną, bramę uchylną oraz dodatkowe drzwi i okno od strony ogrodu.
- Duża brama wjazdowa na posesję z wideodomofonem, otwierana na pilota.
- Furtka z wideodomofonem.
- Instalacja alarmowa.
- Dom monitorowany systemem kamer Dahua.
- Dokoła domu automatyczne latarnie.
- Trawa z rolki, plac zabaw, zadaszony taras.
- W najbliższych dniach planowane są nasadzenia żywopłotu oraz roślin ozdobnych.
- Całość działki ogrodzona. Skraj działki gęsto zadrzewiony.

Ogrzewanie gazowe (podłogowe). Na ścianach gładź oraz wysokiej jakości farby. Dom jest zamieszkały od 2 miesięcy, więc jego stan jest perfekcyjny.

Dom znajduje się w Dąbrowicy w pobliżu rzeki Czechówki; położony jest na wzniesieniu, co zapewnia piękne widoki. Bardzo zielona okolica i spokojne sąsiedztwo.
- 300 m od szkoły podstawowej,
- 3 minuty drogi do ul. Nałęczowskiej,
- 13 minut do Placu Litewskiego.

Podana cena dotyczy domu wraz z wybranymi meblami i wyposażeniem.

Zapraszam do obejrzenia.
Sprzedaż bezpośrednia, agencjom nieruchomości dziękuję.

Michał

  • Dąbrowica, gmina Jastków, powiat lubelski
  • Na sprzedaż bliźniak o powierzchni 168 m², 6 pokoi, wybudowany w 2024 roku
  • Działka 500 m²
  • Budynek w stanie do zamieszkania, z aneksem kuchennym
  • Taras, garaż, ogrzewanie gazowe
  • Media: woda, szambo, prąd, gaz
  • Wyposażenie: klimatyzacja, pralka
  • Oferta dodana bezpośrednio przez właściciela ponad miesiąc temu i zaktualizowana ponad tydzień temu
Wróć
Największa baza ogłoszeń bez pośredników
Zarejestruj się, aby przejść dalej
lub

Kontynuując akceptujesz
Regulamin i Politykę prywatności

Masz już konto na adresowo.pl?
Zaloguj się

Mamy dla Ciebie kredyt hipoteczny z niską ratą! Chcesz poznać szczegóły?

Kontakt z VeloBank:
- ofertę, wniosek i decyzję o przyznaniu kredytu w procesie online,
- wsparcie eksperta hipotecznego na każdym kroku,
- kredyt do 90% wartości nieruchomości.





Wyrażam zgodę na przetwarzanie moich danych osobowych zawartych w formularzu na stronie adresowo.pl przez VeloBank S.A. z siedzibą w Warszawie przy Rondo Ignacego Daszyńskiego 2C (Bank), a tym samym na ich przetwarzanie, w tym profilowanie, przez Bank w celu marketingu produktów i usług Banku za pośrednictwem rozmowy telefonicznej i sms. Zgoda może być w każdej chwili wycofana. Cofnięcie zgody nie ma wpływu na zgodność z prawem przetwarzania danych przed jej wycofaniem.