Dom na sprzedaż bez pośredników
ul. Wyczółkowskiego Budy-Grzybek Kołaczek

NOWA OFERTA
dom wolnostojący, 4 pokoje Budy-Grzybek Kołaczek, ul. Wyczółkowskiego. Zdjęcie 1

Dom na sprzedaż bez pośredników Budy-Grzybek Kołaczek ul. Wyczółkowskiego

1 000 000
9 998 zł/m²
100
4 pok.
Budy-Grzybek Kołaczek, Wyczółkowskiego - lokalizacja przybliżona
Bezpośrednio od właściciela

Jeśli nie potrzebujesz pośrednika, zaoszczędzisz około 30 000 zł. Potrzebujesz wsparcia? Skorzystaj z pomocy agenta.

NA SPRZEDAŻ DOM JEDNORODZINNY W STANIE SUROWYM

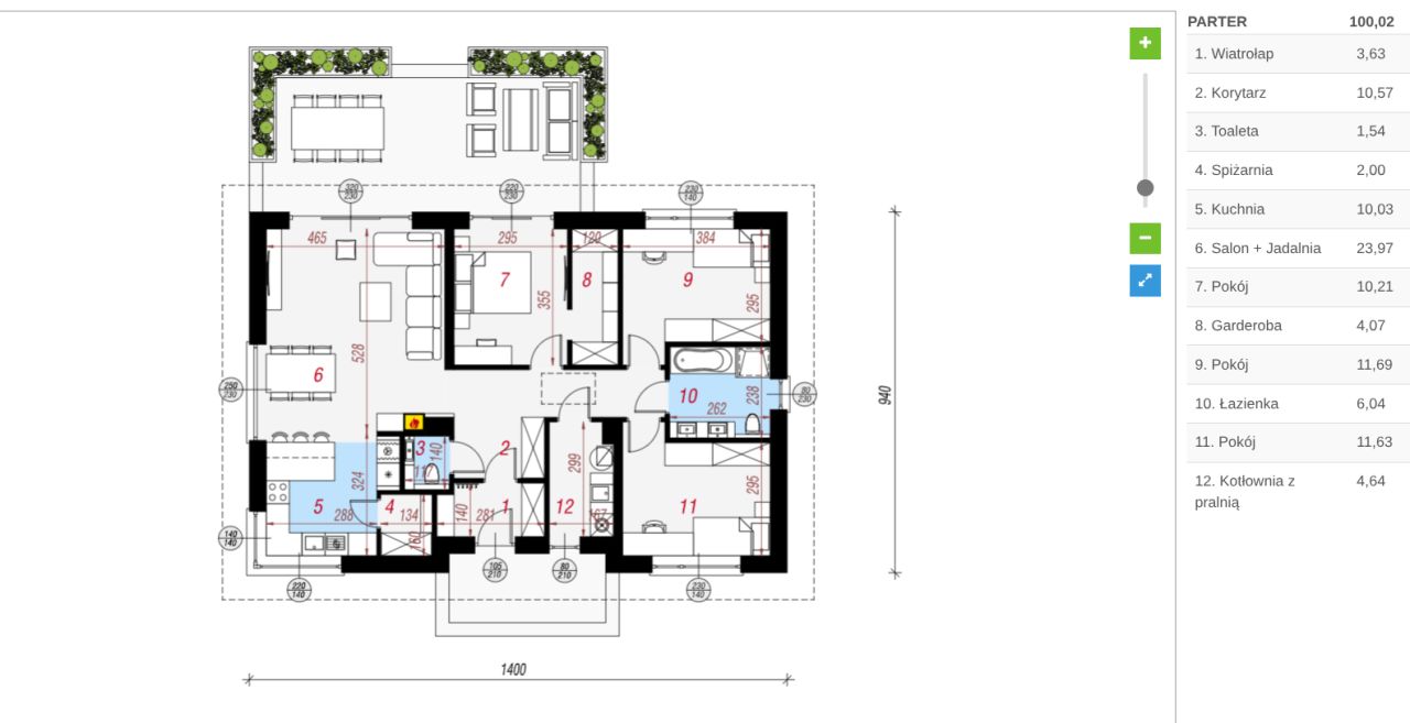
Dom położony w miejscowości Budy Grzybek, gm. Jaktorów na działce o pow. 1048 m2

Powierzchnia zabudowy: 132,07 m², powierzchnia użytkowa: 100,02 m².

Media dostępne na działce: prąd, woda, kanalizacja. Media dostępne w drodze - gaz.

Dom parterowy z podwyższonym strychem. Rok budowy: 2022.

Na działce znajdują się również:

- budynek gospodarczy
- altana
- schowek na narzędzia

Dom położony jest w spokojnej okolicy, nieruchomość idealna dla osób, które chcą wykończyć dom według własnej wizji. Dojazd drogą gminną (asfalt)

Odległość do centrum Jaktorowa: 1 km, do najbliższego sklepu: 900 m, do najbliższej szkoły i przedszkola: 1,5 km, do stacji PKP: około 1,5 km.

Więcej informacji pod numerem telefonu [numer]

  • Oferta z rynku pierwotnego
  • ul. Wyczółkowskiego, Budy-Grzybek Kołaczek, gmina Jaktorów, powiat grodziski  
  • Na sprzedaż dom wolnostojący o powierzchni 100,02 m², 4 pokoje wybudowany w 2022 roku
  • Sizing Streamline Icon: https://streamlinehq.com
    Działka 1 048 m², długość działki: 1400 m, szerokość działki: 940 m  
  • Budynek z poddaszem, w stanie surowym zamkniętym, z aneksem kuchennym  
  • Bez piwnicy  
  • Ogrzewanie gazowe
  • Materiał budowy cegła
  • Dach blachodachówka
  • Okna drewniane
  • Dojazd asfalt
  • Ogrodzenie murowane
  • Media woda, kanalizacja, prąd nieprzyłączony, gaz nieprzyłączony
  • Oferta bezpośrednio od właściciela dodana dodana dzisiaj
Ta nieruchomość może być Twoja od.. sprawdź
200000 zł (20%) Okres spłaty: 30 lat

Podobne domy na sprzedaż

8
dom wolnostojący Stare Budy

1 100 000

130

Sprzedam dom z 2005 r. Jest on położony w bliskiej odległości Brańszczyka (sklepy, szkoła, kościół, poczta). Dom znajduje się w cichej okolicy, otoczonej lasem, w niewielkiej odległości od rzeki Bug. Na parterze znajduje się salon (20 m²), kuchnia (ok. 10 m²), pokój (ok. 8 m²) oraz łazienka z pryszn...

Zobacz ogłoszenie
20
bliźniak, 6 pokoi Jaktorów-Kolonia, ul. Nowowiejskiego

1 100 000

135

6 pok.

Oferuję na sprzedaż, bezpośrednio i bez prowizji, nowoczesny dom w zabudowie bliźniaczej, który zachwyca przemyślanym projektem oraz wysoką jakością użytych materiałów. Budynek, o powierzchni 135 m², został zaprojektowany z myślą o komforcie mieszkańców. Ciepły i energooszczędny, z doskonałą izolacj...

Zobacz ogłoszenie
8
bliźniak, 4 pokoje Budy-Grzybek, ul. Wyczółkowskiego

1 060 000

110

4 pok.

Sprzedam nowoczesny dom parterowy w stanie deweloperskim, z systemem rekuperacji. Powierzchnia całkowita domu to 110,82 m2, idealny dla rodziny z dziećmi. Dom z trzema sypialniami , łazienką i wc. Przestronny salon z dużymi oknami i kuchnią. Duże przeszklenia zapewniają dużo naturalnego światła ...

Zobacz ogłoszenie
17
bliźniak, 4 pokoje Budy-Grzybek

1 060 000

92

4 pok.

Nowoczesny dom parterowy w zabudowie bliźniaczej - komfort, przestrzeń i spokój Na sprzedaż wyjątkowy dom parterowy w zabudowie bliźniaczej o powierzchni 110,82 m², zaprojektowany z myślą o wygodzie codziennego życia. To idealna propozycja dla osób, które szukają nowoczesnego, funkcjonalnego domu be...

Zobacz ogłoszenie
7
bliźniak Budy-Grzybek, ul. Alpejska

1 100 000

140

Do sprzedania połowa bliźniaka o powierzchni około 140m2. Budynek wybudowany na działce o powierzchni 1600 m2. Na elewacji styropian grafitowy 20cm, na poddaszu wełna. Dach pokryty blacho-dachówką. Tynki gipsowe utwardzane, w łazienkach cementowo-wapienne. Okna 3-szybowe w kolorze dąb winchester. W...

Zobacz ogłoszenie
26
bliźniak, 5 pokoi Jaktorów-Kolonia, ul. gen. Okulickiego

935 000

136

5 pok.

Nowoczesny dom w Kolonii Jaktorów - komfort, natura i szybki dojazd do Warszawy Na sprzedaż funkcjonalny, przestronny dom położony w spokojnej i zielonej części Kolonia Jaktorów - idealnej dla rodzin oraz osób szukających wytchnienia od miejskiego zgiełku. Najważniejsze informacje: Powierzchnia całk...

Zobacz ogłoszenie