Dom na sprzedaż bez pośredników
Wincentów  

dom wolnostojący Wincentów. Zdjęcie 1

Dom na sprzedaż bez pośredników Wincentów

780 000
3 035 zł/m²
257
Wincentów - lokalizacja przybliżona
Bezpośrednio od właściciela

Jeśli nie potrzebujesz pośrednika, zaoszczędzisz około 23 400 zł. Potrzebujesz wsparcia? Skorzystaj z pomocy agenta.

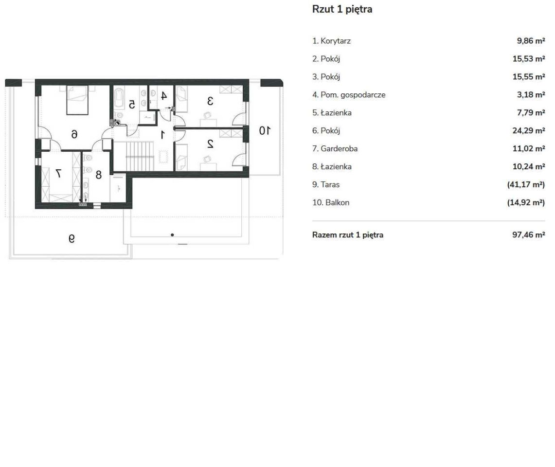
Sprzedam dom 257 m² w trakcie budowy z działką 3500 m² w m. Wincentów, gm. Dobroń, z ważnym pozwoleniem na budowę.

Media:
- Prąd i woda na działce,
- gaz w ulicy,
- Internet w ulicy (TOYA światłowód).

Dojazd z drogi asfaltowej.

Dom w stanie surowym, wykonany dach z ociepleniem (koszt ok. 100 000 zł), stolarka okienna, pierwsza wylewka na parterze.

Budynek budowany dla siebie.

Dla zainteresowanych podeślę zdjęcia MMS.

Z braku czasu nie odpisuję na wiadomości.

Nie jestem zainteresowany współpracą z pośrednikami, więc proszę nie dzwonić.

  • Oferta z rynku pierwotnego
  • Wincentów, gmina Dobroń, powiat pabianicki  
  • Na sprzedaż dom wolnostojący o powierzchni 257 m²  
  • Sizing Streamline Icon: https://streamlinehq.com
    Działka 3 500 m²  
  • Dojazd asfalt
  • Oferta bezpośrednio od właściciela dodana ponad miesiąc temu i zaktualizowana 3 dni temu
Ta nieruchomość może być Twoja od.. sprawdź
156000 zł (20%) Okres spłaty: 30 lat

Podobne domy na sprzedaż

7
dom wolnostojący Chechło Pierwsze

750 000

160

Sprzedam przytulny dom z garażem i budynkami gospodarczymi oraz działką o powierzchni 600 m². Dom został wybudowany w latach 80. Usytuowany jest w spokojnej i cichej okolicy w Chechle Pierwszym, tuż pod Pabianicami. Do centrum miasta Pabianic dostaniecie się Państwo w ok. 8 minut samochodem lub au...

Zobacz ogłoszenie
15
dom wolnostojący, 5 pokoi Dobroń, ul. Odrodzenia

750 000

170

5 pok.

Sprzedam zadbany dom jednorodzinny, z cegły kratówki - o powierzchni użytkowej 170 m2. Trzy pokoje z kuchnią (pokój dzienny ponad 36 m2), łazienka – przestronny przedpokój. Dom na wysokim podpiwniczeniu, pod domem garaż, kotłownia, pralnia, suszarnia, łazienka o raz dwa pokoje mieszkalne lub z przez...

Zobacz ogłoszenie
11
dom wolnostojący, 4 pokoje Piątkowisko

899 000

174

4 pok.

Parterowy DOM gotowy do wykończenia. Dom w Piątkowisku położony jest w spokojnej, podmiejskiej okolicy, co zapewnia komfort i prywatność. Bliskość obwodnicy pozwala na szybki dojazd zarówno do Pabianic, jak i Łodzi. Lokalizacja gwarantuje wygodny dostęp do usług, sklepów i infrastruktury miejskiej....

Zobacz ogłoszenie
21
dom wolnostojący, 4 pokoje Pabianice Bugaj, ul. Michała Ossowskiego

875 000

160

4 pok.

Na sprzedaż nowoczesny dom jednorodzinny - os. Bugaj Oferujemy na sprzedaż wolnostojący dom jednorodzinny o powierzchni ok. 160 m², położony na spokojnym i cenionym osiedlu Bugaj. To idealna propozycja dla rodziny szukającej komfortu, energooszczędnych rozwiązań oraz doskonałej lokalizacji, z szybk...

Zobacz ogłoszenie
34
dom wolnostojący, 3 pokoje Czołczyn

799 000

158

3 pok.

Do sprzedania dom w Czołczynie koło Lutomierska. Dom parterowy (158m2) + poddasze użytkowe. Parter jest do zamieszkania, natomiast poddasze jest do wykończenia. Działka 1000m2. Dostępne media: woda, gaz, prąd. Oczyszczalnia przydomowa. Ogrzewanie gazowe + kominek z płaszczem wodnym. Więcej informac...

Zobacz ogłoszenie
11
dom wolnostojący, 5 pokoi Orpelów, ul. Prosta

665 360

230

5 pok.

Na sprzedaż dom w stanie surowym otwartym z poddaszem użytkowym o powierzchni użytkowej 230,13 m², położony na rozwijającym się osiedlu w Orpelowie, gm. Dobroń przy ulicy Prostej. Orpelów leży zaledwie 2 km od Dobronia, 5 km od Pabianic i 25 km od centrum Łodzi co zapewnia szybki dostęp do większeg...

Zobacz ogłoszenie