Nieruchomość komercyjna do wynajęcia bez pośredników
ul. Kolejowa 2 Banino

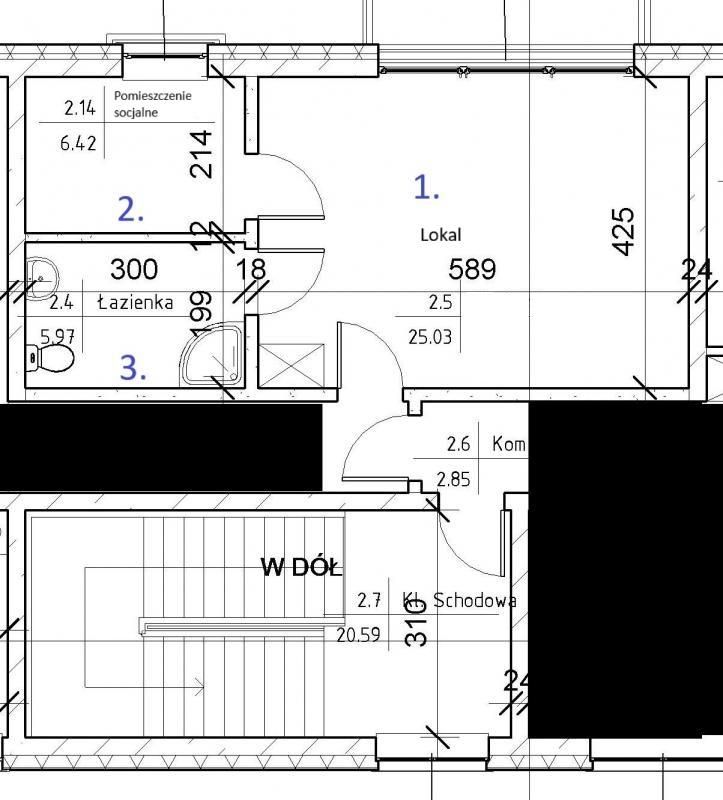
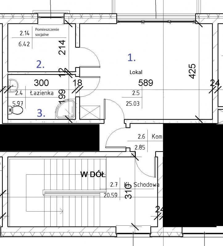
Biuro Banino, ul. Kolejowa. Zdjęcie 1

Nieruchomość komercyjna do wynajęcia bez pośredników Banino ul. Kolejowa 2

2 500
68 zł/m²
37
Banino, Kolejowa 2 - lokalizacja dokładna
Bezpośrednio od właściciela

Jeśli nie potrzebujesz pośrednika, zaoszczędzisz prowizję. Potrzebujesz wsparcia? Skorzystaj z pomocy agenta.

WYNAJEM LOKALU USŁUGOWO-BIUROWEGO 37 M²

Banino, ul. Kolejowa 2 - Idealna Lokalizacja dla Twojego Biznesu!

Szukasz prestiżowego i dobrze skomunikowanego miejsca na rozwój swojej firmy? Mamy dla Ciebie doskonałą propozycję!

1. Główne Atuty Nieruchomości:
Powierzchnia: 37 m²
Lokalizacja: Banino, ul. Kolejowa 2/5
Przeznaczenie: Idealny na biuro, kancelarię, gabinet specjalistyczny, szkołę językową, usługę edukacyjną, pracownię lub inną działalność usługową.
Układ: Przestronny i funkcjonalny – często spotykany układ to 3 pomieszczenia, w tym sala główna, pomieszczenie socjalne ( z możliwością kuchni ) i łazienka.
Standard: Lokal w nowoczesnym i zadbanym budynku handlowo-usługowym.

2. Doskonała Lokalizacja i Komunikacja:
Komunikacja: Bliskość przystanków autobusowych (szybki dojazd do Trójmiasta: Gdańsk, Gdynia, Lotnisko).
Dojazd: Sprawny i szybki dojazd do Obwodnicy Trójmiasta oraz Portu Lotniczego.
Parking: Ogólnodostępny parking dla klientów i pracowników tuż przy budynku.
Widoczność: Lokal charakteryzuje się dużymi oknami, zapewniającymi dobrą ekspozycję.

3. Warunki Najmu:
Czynsz najmu: 2500 zł brutto miesięcznie
Opłaty eksploatacyjne/media: Dodatkowo płatne (wg zużycia: woda, prąd, gaz/ogrzewanie).
Kaucja: dwumiesięczny czynsz
Typ umowy: Wynajem

Nie przegap tej szansy! Banino to dynamicznie rozwijająca się miejscowość, a ul. Kolejowa 2 to jeden z głównych punktów handlowo-usługowych.

4. Kontakt:
Zainteresowanych zapraszamy do kontaktu w celu umówienia prezentacji i poznania szczegółów oferty.
Kamila Halman
tel. [numer]
e-mail: [email]

  • ul. Kolejowa 2, Banino, gmina Żukowo, powiat kartuski  
  • Do wynajęcia biuro o powierzchni 37 m²  
  • Oferta bezpośrednio od właściciela dodana ponad miesiąc temu i zaktualizowana ponad tydzień temu

Podobne nieruchomości komercyjne na wynajem

3
Hala/magazyn Chwaszczyno, ul. Węglowa

2 200

140

Wynajmę dom na magazyn. Powierzchnia: parter około 70 m² + poddasze 70 m². Dodatkowo: działka około 200-300 m² - do ustalenia. Lokalizacja: Chwaszczyno, ul. Węglowa. Koszt: 2200 zł/miesiąc.

Zobacz ogłoszenie
3
Lokal Dzierżążno

2 900

58

Oferta dotyczy lokalu o pow. 58m2, położony w Dzierżążnie. Miejscowość położona między Kartuzami a Żukowem, około 30 km od Gdańska. Wygodny dojazd od Trójmiasta, zaledwie 400 metrów od stacji kolejowej PKM. W sąsiedztwie piękne nowe osiedle domów jednorodzonych, które prażnie się rozwija. Do dy...

Zobacz ogłoszenie
1
Lokal Sierakowice, ul. Lęborska

2 500

44

Mam do wynajęcia lokal na biuro lub usługi, ul. Lęborska 48 w Sierakowicach. Powierzchnia 44 m2. Przy głównej ulicy, duży parking. Blisko Biedronka, Bank PKO. Lokal do wynajęcia od 1 kwietnia 2026r. Zainteresowanych zapraszam do kontaktu.

Zobacz ogłoszenie
1
Lokal Kartuzy Centrum, ul. Kościerska

2 460

82

Posiadam do wynajęcia pomieszczenia biurowe / lokal / sklep o powierzchni: - 45m2 - 75m2 - 82m2 Lokale po remoncie, ogrzewanie gazowe, z pomieszczeniem socjalnym oraz łazienką. Dostępny prywatny parking. LOKALIZACJA: Hala znajduję się w przemysłowej części Kartuz. Ma bezpośredni dostęp do drogi wo...

Zobacz ogłoszenie
3
Lokal Dzierżążno

2 900

58

Oferta dotyczy lokalu o pow. 58m2, położony w Dzierżążnie. Miejscowość położona między Kartuzami a Żukowem, około 30 km od Gdańska. Wygodny dojazd od Trójmiasta, zaledwie 400 metrów od stacji kolejowej PKM. W sąsiedztwie piękne nowe osiedle domów jednorodzonych, które prażnie się rozwija. Do dy...

Zobacz ogłoszenie
3
Lokal Dzierżążno

2 100

42

Oferta dotyczy lokalu o pow. 395m2, położony w Dzierżążnie. Miejscowość położona między Kartuzami a Żukowem, około 30 km od Gdańska. Wygodny dojazd od Trójmiasta, zaledwie 400 metrów od stacji kolejowej PKM. W sąsiedztwie piękne nowe osiedle domów jednorodzonych, które prażnie się rozwija. Do dy...

Zobacz ogłoszenie