Nieruchomość komercyjna do wynajęcia bez pośredników Sokołów Podlaski ul. Kolejowa
Oferujemy do wynajęcia przestrzeń biurową zlokalizowaną na pierwszym piętrze budynku przy ul. Kolejowej 15 w Sokołowie Podlaskim (dawne biuro firmy ANIKA Trans).
Na parterze znajduje się sklep motoryzacyjny Inter Cars, co zapewnia dobrą rozpoznawalność lokalizacji.
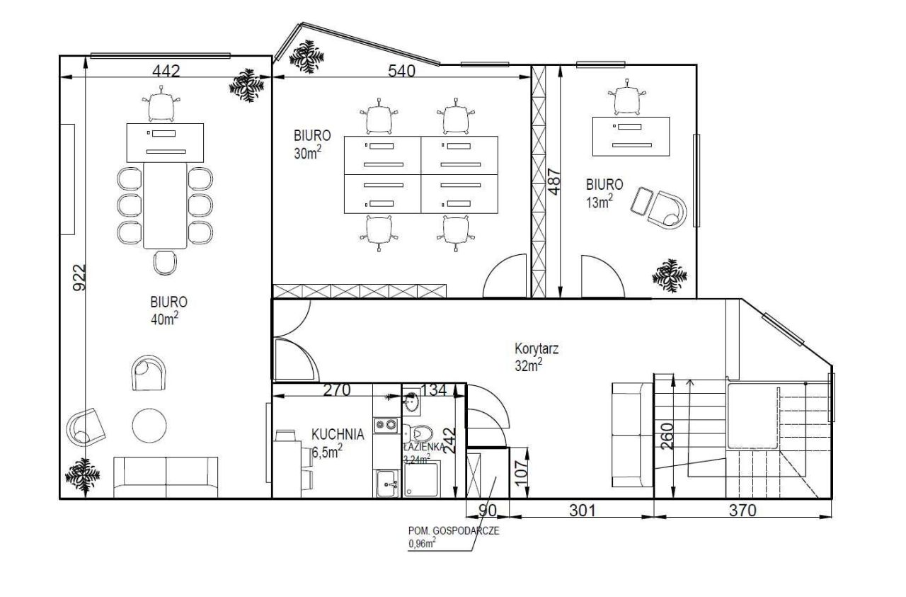
Powierzchnia obejmuje:
- 3 biura: 40 m², 30 m² oraz 13 m²
- kuchnię: 6,5 m²
- łazienkę: 3,24 m²
- pomieszczenie gospodarcze: 0,96 m²
- przestronny korytarz: 32 m²
Standard i wyposażenie:
- klimatyzacja sufitowa w każdym pomieszczeniu
- budynek po modernizacji: nowa elewacja wentylowana, ocieplenie
- ogrzewanie centralne (gazowe)
- dostęp do światłowodu
- kontrola dostępu oraz monitoring
Dodatkowe informacje:
Pomieszczenia wymagają odświeżenia lub remontu - istnieje możliwość wykonania prac wspólnie z najemcą lub dostosowania powierzchni pod indywidualne potrzeby. Jesteśmy elastyczni w zakresie aranżacji wnętrza.
Preferowany wynajem całej powierzchni (bez podziału na mniejsze biura).
Zapraszamy do kontaktu w celu uzyskania szczegółów.
-
ul. Kolejowa, Sokołów Podlaski, powiat sokołowski
-
Do wynajęcia biuro o powierzchni 130 m²
-
Dostępne do wynajęcia od zaraz
-
Oferta bezpośrednio od właściciela dodana ponad tydzień temu
Ogłoszenia nieruchomości z tej okolicy
-
Nieruchomości komercyjne do
wynajęcia Sokołów Podlaski -
Nieruchomości komercyjne do
wynajęcia Sokołów Podlaski ul. Kolejowa -
Nieruchomości komercyjne do
wynajęcia mazowieckie -
Nieruchomości komercyjne do
wynajęcia powiat sokołowski -
Nieruchomości komercyjne Sokołów
Podlaski -
Mieszkania na sprzedaż
Sokołów Podlaski -
Ogłoszenia nieruchomości Sokołów
Podlaski