Szczecin Gumieńce
ul. Kazimierska
1-pokojowe mieszkanie do wynajęcia Bez pośrednika

Mieszkanie 1-pokojowe Szczecin Gumieńce, ul. Kazimierska
Cena (miesiąc)
2 500
Powierzchnia
33
Czynsz (dodatkowo)
220
Umeblowane
w pełni
Kaucja
3 000
Szczecin Gumieńce · 2 500 zł

Ogłoszenie właściciela - bez pośredników

Mieszkanie 1-pokojowe Szczecin Gumieńce, ul. Kazimierska. Zdjęcie 1
NOWA OFERTA dodana 7 godzin temu
Mieszkanie 1-pokojowe Szczecin Gumieńce, ul. Kazimierska. Zdjęcie 1

Bez pośrednika

Opis
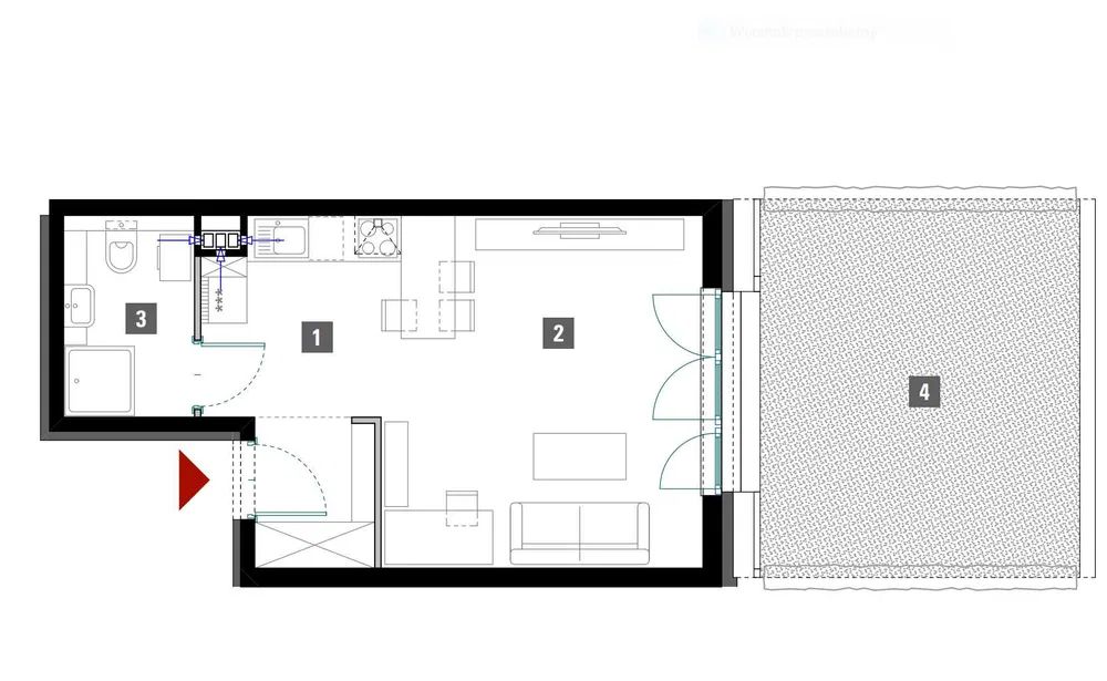
KAWALERKA 33 m² - Szczecin, Gumieńce- ul Kazimierska z ogródkiem (22 m2) i podwójnym miejscem parkingowym w hali garażowej/ platforma (w cenie) bezpośrednio pod mieszkaniem.
Kawalerka, położona jest na parterze w apartamentowcu z 2017 r.
Mieszkanie jest ciche, ciepłe i jasne — idealne dla jednej osoby
szukającej komfortu oraz wygody (oferta wyłącznie dla osoby niepalącej, bez dzieci).

Mieszkanie składa się z salonu (uwaga: salon jest dużo większy niż na zdjęciu nr 1, ale za sofą stoją jeszcze meble do wywiezienia),
z aneksem kuchennym, oraz łazienki i korytarza.
Mieszkanie jest w pełni wyposażone m.in. sofa, ława, stolik rtv, stół, krzesła, pralka, lodówka, płyta indukcyjna, mikrofalówka, telewizor Sony (tv sat- Polsat Box płatne wg wybranego pakietu),
w pokoju oraz na korytarzy pojemne szafy w zabudowie z drzwiami przesuwanymi,

Monitoring- całe osiedle, ale także na klatce schodowej przed drzwiami wejściowymi do mieszkania, dodatkowo roleta zewnętrzna antywłamaniowa i wideofon w mieszkaniu.

Na osiedlu jest sklep Żabka, obok Biedronka i stacje paliw Mol i Orlen. Po drugiej stronie ulicy restauracja McDonald, sklep Castorama, Centrum Handlowe Ster.

Kawalerka gotowa do zamieszkania od stycznia 2026 r.

Warunki najmu:
-opłata najmu: 2 500 zł
-czynsz do wspólnoty ok. 220 zł
-prąd Enea, ogrzewanie i ciepła woda SEC, zimna woda i ścieki ZWiK- płatne dodatkowo wg liczników
-kaucja: 3000 zł.

Oferta prywatna (pośrednikom dziękuję- proszę nie dzwonić!).

  • Do wynajęcia mieszkanie 1-pokojowe o powierzchni 33 m²
  • parter w 4-piętrowym apartamentowcu z windą
  • Dostępne do wynajęcia od 2026-01-01
  • Szczecin, Gumieńce, ul. Kazimierska
  • Ogródek, aneks kuchenny
  • Okna plastikowe
  • Wyposażenie: kuchenka, lodówka, mikrofalówka, pralka, telewizor
  • Przyjazne zwierzętom
  • Oferta dodana bezpośrednio przez właściciela dzisiaj
Wróć
Największa baza ogłoszeń bez pośredników
Zarejestruj się, aby przejść dalej
lub

Kontynuując akceptujesz
Regulamin i Politykę prywatności

Masz już konto na adresowo.pl?
Zaloguj się

Mamy dla Ciebie kredyt hipoteczny z niską ratą! Chcesz poznać szczegóły?

Kontakt z VeloBank:
- ofertę, wniosek i decyzję o przyznaniu kredytu w procesie online,
- wsparcie eksperta hipotecznego na każdym kroku,
- kredyt do 90% wartości nieruchomości.





Wyrażam zgodę na przetwarzanie moich danych osobowych zawartych w formularzu na stronie adresowo.pl przez VeloBank S.A. z siedzibą w Warszawie przy Rondo Ignacego Daszyńskiego 2C (Bank), a tym samym na ich przetwarzanie, w tym profilowanie, przez Bank w celu marketingu produktów i usług Banku za pośrednictwem rozmowy telefonicznej i sms. Zgoda może być w każdej chwili wycofana. Cofnięcie zgody nie ma wpływu na zgodność z prawem przetwarzania danych przed jej wycofaniem.