Międzyrzecze

działka siedliskowa na sprzedaż Bez pośrednika

Działka siedliskowa Międzyrzecze
Cena
370 000
Powierzchnia
2515 m²
Cena za m²
147
Międzyrzecze · 370 000 zł

Ogłoszenie właściciela - bez pośredników

Działka siedliskowa Międzyrzecze. Zdjęcie 1
Działka siedliskowa Międzyrzecze. Zdjęcie 1

Bez pośrednika. Oszczędzasz 11 100 zł na prowizji pośrednika!

Sprzedam budynek gospodarczy oraz działkę we wsi Międzyrzecze pod Strzegomiem.

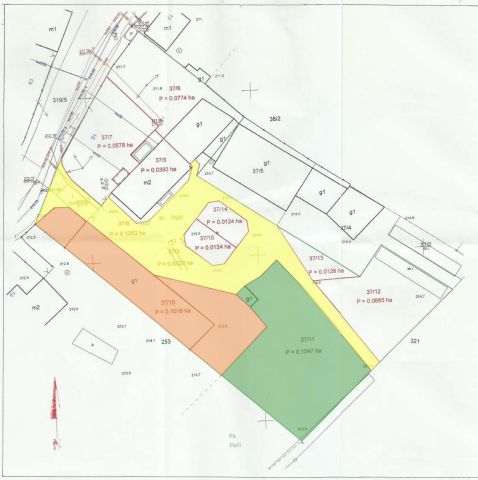
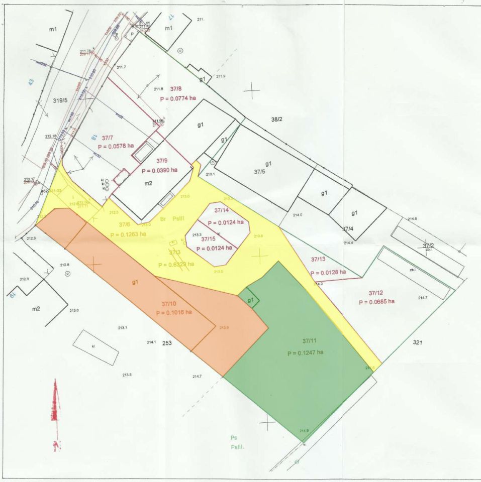
1) Budynek gospodarczy znajduje się na działce 10,16a. Przyziemie budynku ma 394,5m2 na które składa się 7 pomieszczeń o metrażu:
30m2, 33m2, 43,5m2, 36m2, 37,5m2, 155,5m2 oraz 59m2. Dwa z pomieszczeń (43,5m2 oraz 36m2) to garaże - w tym jeden z kanałem ( pomieszczenie 43,5 m2). Budynek dodatkowo posiada strych oraz poddasze. Łączna powierzchnia strychu z poddaszem to 469,5 m2. Rozkład pomieczeń w załączonym pliku - budynek C. Numer działki na mapie 37/10 - kolor pomarańczowy.

2) Działka rolna ma 12,47a - na mapie oznaczenie 37/11 - kolor zielony.

Do działki i budynku sprzedawany jest udział w działce dojazdowej ( na mapie oznaczenie 37/6) - kolor żółty.

Łączna powierzchnia działek to 25,15 ara z tego działka rolna razem z działką dojazdową 13,73 a (12,47 a + 1,26 a działki dojazdowej) oraz działka pod budynkiem razem z działką dojazdową 11,42 ara (10,16a + 1,26a działki dojazdowej )

Całościowa kwota - 370 tyś PLN. Istnieje możliwość kupienia jedynie budynku gospodarczego - kwota 220 tyś PLN.

Tel. kontaktowy [numer]

  • Międzyrzecze, gmina Strzegom, powiat świdnicki
  • Na sprzedaż działka siedliskowa o powierzchni 2515 m².
  • Zobacz plan w serwisie geoportal.gov.pl
  • Numer ewidencyjny działki: 37/11 oraz 37/10 oraz 37/6
  • Cena do negocjacji
  • Oferta dodana bezpośrednio przez właściciela ponad miesiąc temu i zaktualizowana ponad tydzień temu
Wróć
Największa baza ogłoszeń bez pośredników
Zarejestruj się, aby przejść dalej
lub

Kontynuując akceptujesz
Regulamin i Politykę prywatności

Masz już konto na adresowo.pl?
Zaloguj się

Mamy dla Ciebie kredyt hipoteczny z niską ratą! Chcesz poznać szczegóły?

Kontakt z VeloBank:
- ofertę, wniosek i decyzję o przyznaniu kredytu w procesie online,
- wsparcie eksperta hipotecznego na każdym kroku,
- kredyt do 90% wartości nieruchomości.





Wyrażam zgodę na przetwarzanie moich danych osobowych zawartych w formularzu na stronie adresowo.pl przez VeloBank S.A. z siedzibą w Warszawie przy Rondo Ignacego Daszyńskiego 2C (Bank), a tym samym na ich przetwarzanie, w tym profilowanie, przez Bank w celu marketingu produktów i usług Banku za pośrednictwem rozmowy telefonicznej i sms. Zgoda może być w każdej chwili wycofana. Cofnięcie zgody nie ma wpływu na zgodność z prawem przetwarzania danych przed jej wycofaniem.