Lembruk

działka inwestycyjna na sprzedaż Bez pośrednika

Działka inwestycyjna Lembruk
Cena
590 000
Powierzchnia
9119 m²
Cena za m²
65
Lembruk · 590 000 zł

Ogłoszenie właściciela - bez pośredników

Działka inwestycyjna Lembruk. Zdjęcie 1
Działka inwestycyjna Lembruk. Zdjęcie 1

Bez pośrednika. Oszczędzasz 17 700 zł na prowizji pośrednika!

 Działka o powierzchni 9 119 m2 położona jest w nowopowstałym zespole terenów rekreacyjnych. Z terenu działki przepiękny widok na jezioro Kiersztanowskie. Podana cena to cena netto. Do ceny należy doliczyć 23% VAT
• powierzchnia zabudowy:
- dla terenu 2UT – max 25 % powierzchni działki budowlanej (czyli prawie do 2800 m2 powierzchni zabudowy)
• wskaźnik intensywności zabudowy:
- dla terenu 2UT- 0,2 ÷ 1,0
• powierzchnia terenu biologicznie czynnego:
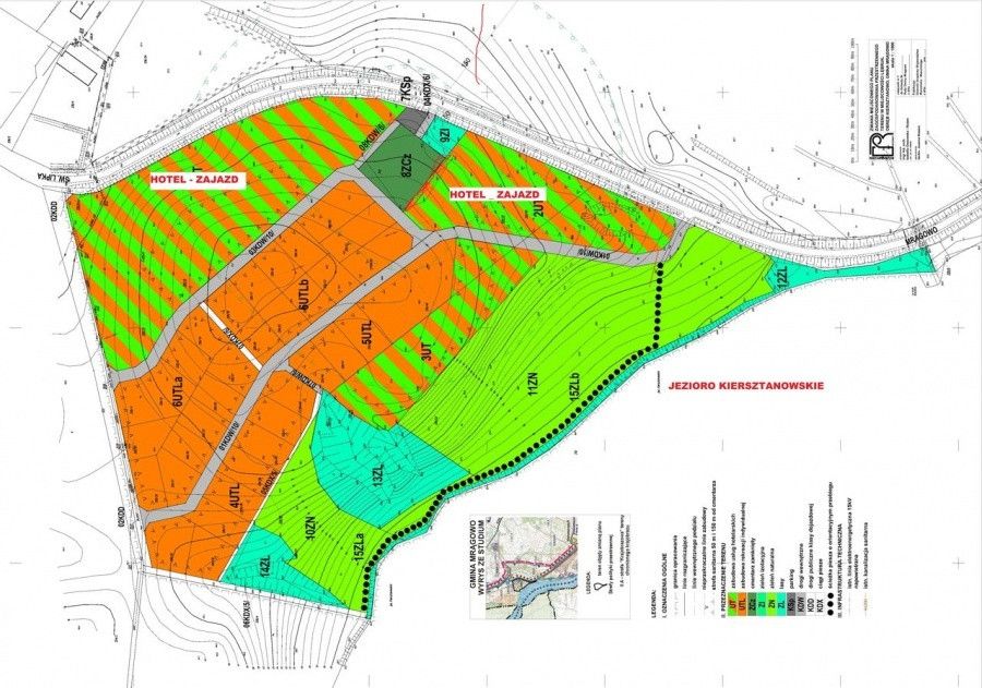
- działka leży na terenie zabudowy turystyczno-rekreacyjnej, przy drodze Mrągowo – Św. Lipka, na wzgórzu nad jeziorem Kiersztanowskim. Przepiękna okolica, wiele terenów niezagospodarowanych, ogólnodostepnych, idealnych do spacerów i dalszych wędrówek. Jest także wytyczony szlak kajakowy od Świętej Lipki do Mrągowa. Jezioro Kiersztanowskie czyste, nadające się do kąpieli i wędkowania. Odległość do jeziora ok. 50 m.
Dla całego terenu opracowany i uchwalony został Miejscowy Plan Zagospodarowania Przestrzennego. Działka oznaczona w planie symbolem 2UT przeznaczona jest w nim na cele zabudowy hotelowej. Usługi hotelarskie definiuje się jako krótkotrwałe, ogólnie dostępne wynajmowanie domów, mieszkań, pokoi, miejsc noclegowych, a także miejsc na ustawienie namiotów lub przyczep samochodowych oraz świadczenie, w obrębie obiektu, usług z tym związanych.
U S T AWA z dnia 29 sierpnia 1997 r. o usługach hotelarskich oraz usługach pilotów wycieczek i przewodników turystycznych1).
Działka została już geodezyjnie wydzielona. Oznacza to, że natychmiast po wykonaniu projektu można przystąpić do budowy hotelu, motelu, zajazdu lub campingu. Działka może być powiększona o działkę sąsiednią o pow. 3000m2.
Cena do niewielkiej negocjacji.
Uzbrojenie terenu:
Energia elektryczna – skrajem działki (północny narożnik) przebiega linia średniego napięcia 15 kV. Umożliwia to wykonanie stacji transformatorowej dla potrzeb zabudowy. W odległości 30m jest skrajna skrzynka osiedlowej sieci nn.
Woda – z projektowanej gminnej studni wierconej dla której wydano decyzję o warunkach zabudowy. Do studni jest ok. 300 m).
Kanalizacja sanitarna gminna ø200 została wykonana i jej końcówka znajduje się 50 m od granic działki.
Obecnie działka jest wolna od trwałych naniesień roślinnych , porośnięta somosiejką, głównie brzozową.
Fragment z planu zagospodarowania
§ 14. Ustalenia szczegółowe dotyczące terenu 2UT
• Przeznaczenie terenu – zabudowa usług pensjonatowych i hotelarskich.
• Zasady kształtowania zabudowy:
• wysokość zabudowy do trzech kondygnacji nadziemnych w tym jedna kondygnacja w dachu stromym;
• dachy dwu lub wielospadowe o nachyleniu połaci 350 do 450 kryte dachówką ceramiczną, cementową lub blaszaną w kolorze ceglastej czerwieni;
• główne połacie dachu o tym samym spadku;
• poziom rzędnej parteru nie może być wyższy niż 45 cm od poziomu terenu w najwyższym jego punkcie w obrysie budynku;
• dla budynków parterowych dopuszcza się dachy o kącie nachylenia połaci 250.
• Zasady zagospodarowania terenów:
• w programie zagospodarowania działki należy uwzględnić poza zabudowa kubaturową miedzy innymi: zieleń urządzoną, place zabaw dla dzieci, małą architekturę, parkingi;
• nieprzekraczalne linie zabudowy jak na rysunku planu;
• zakazuje się stosowania ogrodzeń pełnych i z prefabrykowanych elementów żelbetowych;
• dopuszcza się ogrodzenia do wysokości 1,50 m wykonane z materiałów tradycyjnych jak: kamień, drewno, ceramika budowlana oraz elementy kute;
• dostępność komunikacyjna z drogi krajowej Mrągowo-Św. Lipka i drogi wewnętrznej ; 
UWAGA!!! Tu jest link do PANORAMY 360stopni. Proszę go skopiować i wkleić w pasek wyszukiwarki. Przy pomocy kursora można oglądać całą okolicę wraz z zaznaczoną działką. Wspaniały spacer wirtualny:

https://kuula.co/share/5sjY3?logo=0&info=0&fs=1&vr=0&sd=1&autorotate=0.02&thumbs=1&inst=pl

  • Lembruk, gmina Mrągowo, powiat mrągowski
  • Na sprzedaż działka inwestycyjna o powierzchni 9119 m².
  • Numer ewidencyjny działki: 281003_2.0009.326/50, KW OL1M/00015015/7
  • Dojazd: asfalt, ogrodzenie: bez ogrodzenia
  • Media: woda nieprzyłączona, kanalizacja, prąd
  • Cena do negocjacji
  • Oferta dodana bezpośrednio przez właściciela ponad miesiąc temu i zaktualizowana ponad tydzień temu
Wróć
Największa baza ogłoszeń bez pośredników
Zarejestruj się, aby przejść dalej
lub

Kontynuując akceptujesz
Regulamin i Politykę prywatności

Masz już konto na adresowo.pl?
Zaloguj się

Mamy dla Ciebie kredyt hipoteczny z niską ratą! Chcesz poznać szczegóły?

Kontakt z VeloBank:
- ofertę, wniosek i decyzję o przyznaniu kredytu w procesie online,
- wsparcie eksperta hipotecznego na każdym kroku,
- kredyt do 90% wartości nieruchomości.





Wyrażam zgodę na przetwarzanie moich danych osobowych zawartych w formularzu na stronie adresowo.pl przez VeloBank S.A. z siedzibą w Warszawie przy Rondo Ignacego Daszyńskiego 2C (Bank), a tym samym na ich przetwarzanie, w tym profilowanie, przez Bank w celu marketingu produktów i usług Banku za pośrednictwem rozmowy telefonicznej i sms. Zgoda może być w każdej chwili wycofana. Cofnięcie zgody nie ma wpływu na zgodność z prawem przetwarzania danych przed jej wycofaniem.