Działka na sprzedaż bez pośredników
Silna  

Działka budowlana Silna. Zdjęcie 1

Działka na sprzedaż bez pośredników Silna

79 000
77 zł/m²
1 025
Silna - lokalizacja przybliżona
Bezpośrednio od właściciela

Jeśli nie potrzebujesz pośrednika, zaoszczędzisz około 2 400 zł. Potrzebujesz wsparcia? Skorzystaj z pomocy agenta.

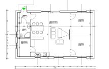
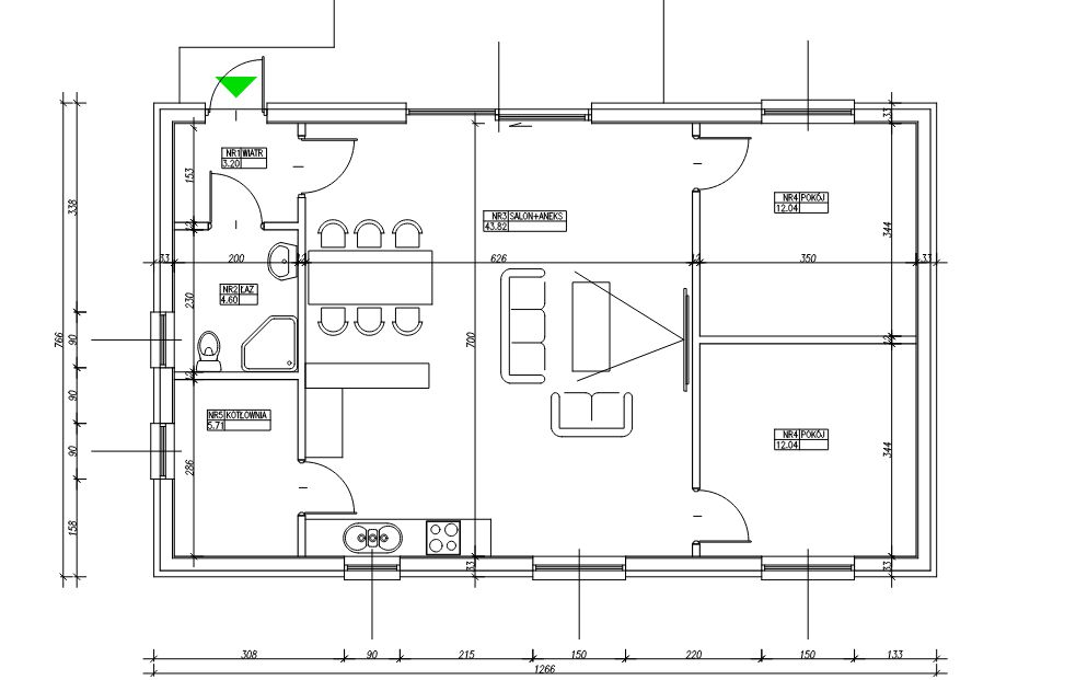
Sprzedaż działki z gotowym projektem i pozwoleniem na budowę – atrakcyjna lokalizacja na łonie natury

Na sprzedaż wyjątkowa działka budowlana w malowniczej okolicy, idealna dla osób szukających spokoju, ciszy i kontaktu z naturą. Działka położona w jednym z najpiękniejszych zakątków regionu, z dala od miejskiego zgiełku, ale wciąż blisko wszystkich niezbędnych udogodnień.


Gotowy projekt budowlany – zatwierdzony przez odpowiednie władze, dostosowany do specyfiki działki.

Pozwolenie na budowę – bez zbędnych formalności, od razu możesz rozpocząć budowę wymarzonego domu.


Lokalizacja – działka położona wśród pięknej przyrody, w otoczeniu lasów, jezior lub innych naturalnych walorów. Idealne miejsce do życia lub na weekendowy wypoczynek.

To doskonała okazja dla inwestora lub osoby szukającej wyjątkowego miejsca do zamieszkania. Otoczenie natury, cisza i spokój to zalety, które doceni każdy, kto marzy o życiu w harmonii z przyrodą.

Zainteresowanych proszę o kontakt pod numerem telefonu: [wpisz numer] lub e-mail: [wpisz adres e-mail].

Serdecznie zapraszam do oględzin!

  • Silna, gmina Pszczew, powiat międzyrzecki  
  • Na sprzedaż działka budowlana o powierzchni 1 025 m²  
  • Plan w serwisie geoportal.gov.pl Otwórz plan
  • Numer ewidencyjny działki 596
  • Dojazd polny
  • Ogrodzenie bez ogrodzenia
  • Media woda nieprzyłączona, brak kanalizacji, prąd, gaz nieprzyłączony
  • Oferta bezpośrednio od właściciela dodana ponad miesiąc temu i zaktualizowana ponad tydzień temu
Ta nieruchomość może być Twoja od.. sprawdź
16000 zł (20%) Okres spłaty: 30 lat

Podobne działki na sprzedaż

3
Działka budowlana Nietoperek

99 000

1000

Do sprzedania działki budowlane. Lokalizacja Międzyrzecz. Obręb Nietoperek. Działki około 10 arow, ceny od 99, w zależności od powierzchni i lokalizacji , z wydanymi warunkami zabudowy, w bardzo spokojnym miejscu, przy ścianie lasu, około 5min do centrum Międzyrzecza. Około 2min do ciągle zarybianeg...

Zobacz ogłoszenie
8
Działka budowlana Pszczew

100 000

1000

Sprzedam działki w Pszczewie. Działki 10 arowe i większe, prąd i woda, położone wzdłuż drogi gruntowej. Istnieje możliwość sprzedaży całości. Blisko centrum Pszczewa. Tel. kontaktowy: Maria

Zobacz ogłoszenie
3
Działka budowlana Krobielewko

80 000

1630

Na sprzedaż oferuję działkę budowlaną o powierzchni 1630 mkw., na skraju Puszczy Noteckiej, nad rzeką Wartą. 12 km do ośrodka wypoczynkowego nad jeziorem Mierzyńskim.

Zobacz ogłoszenie
8
Działka budowlana Silna

82 610

1502

66-330 Silna, gm. Pszczew, pow. międzyrzecki, woj. lubuskie. Cena: (55 zł/m2) plus udział w drodze Odległości: jezioro Chłop 1,5 km, Silna 1,5 km, Pszczew 6 km, Międzyrzecz 18 km, Gorzów 53 km. Działka budowlano-letniskowa w kształcie prostokąta o pow. 1502 m2 (38 m X 40 m). Media: prąd, woda. ...

Zobacz ogłoszenie
6
Działka budowlana Silna

85 000

900

Ta wyjątkowa działka oferuje niepowtarzalną okazję do realizacji marzeń o własnym domu. Znajduje się na obszarze, gdzie zatwierdzono projekt budowy domu Bolesławice 5 dws, co oznacza, że masz już gotowe pozwolenie na rozpoczęcie prac budowlanych. To idealne miejsce dla tych, którzy pragną mieszkać w...

Zobacz ogłoszenie
8
Działka budowlana Goraj

102 000

1200

Atrakcyjna działka na skraju lasu media w drodze LOKALIZACJA: Miejscowość Goraj (na skraju wsi), gmina Przytoczna, powiat Międzyrzecz. Możliwość dowolnego podziału: gotowa jest 1000 m2, możliwe większe i mniejsze. Media: prąd, woda i kanalizacja – w drodze. Działka znajduje się w ustr...

Zobacz ogłoszenie